1,395 ft²
$698 per ft²
2 rooms
1 bed
2 baths
Condo
- Financial District
Resale
reported sale
Sold on 7/5/2023
Not yet verified by closing records
Seller's agents
This home has been saved by 335 users.
Listing by Compass, Corporate Broker, 110 5th Avenue, New York, NY 10011
Common charges
$2,113/mo
Estimated payment
$9,589/mo
Legal disclaimerAll calculations are estimates provided by StreetEasy for informational purposes only. Actual amounts or financing terms may vary. Please contact your mortgage provider for specifics.Taxes
$2,417/mo
Tax abatement
No info
About
Seller’s agent
description
*Seller offering one year prepaid common charges*
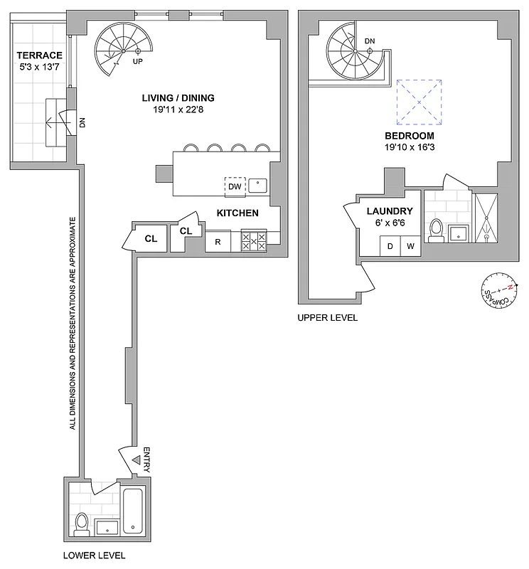
Enjoy the pleasures of luxurious modern living space, a private outdoor terrace, and exceptional Hudson River views in this stunning corner duplex apartment perched on the 23rd floor of the landmarked Downtown Athletic Club Building. This meticulously designed one-bedroom, two-bathroom corner gem in the Financial District is filled with sunlight and newly renovated throughout.
Policies
Sorry, policy info isn’t available right now. Check back later.
Home features
Central air
Dishwasher
Private outdoor space
Terrace
View
Water
Washer/dryer
Building amenities
Services and facilities
Bike room
Concierge
Doorman
Full-time
Elevator
Laundry in building
Live-in super
Wellness and recreation
Gym
Shared outdoor space
Deck
Roof deck
About the building
Downtown Athletic Club Building
20 West Street, New York, NY 10004
283 units
45 stories
1930 built
For sale
5 available units for saleFor rent
9 available units for rentDocuments and permits
View documents and permitsProperty history
- Price Change: ↓ $20,000 (-2.0%) on 3/15/23
- Days on market: 165 daysThis is the number of days the listing has been on StreetEasy.
| Date | Price | Event |
|---|---|---|
7/5/2023 | $975,000 | Sold by Compass |
5/15/2023 | $975,000 | In contract |
3/15/2023 | $975,000 | Price decreased by 2% |
12/1/2022 | $995,000 | Listed by Compass |
6/15/2023 | $960,000 |
Past listing photos
Sign in to take a closer look at how this home compares to similar homes.
Explore Financial District
Transit
| Location | Distance |
|---|---|
1at Rector St | under 500 feet |
RWat Rector St | under 500 feet |
45at Bowling Green | 0.11 miles |
RW1at Whitehall St | 0.19 miles |
45at Wall St | 0.2 miles |
About Financial District
Rental prices shown are base rent before any fees. Visit listings for cost and fees breakdown.
SalesMedian asking price
1 bed
$950K
RentalsMedian asking base rent
1 bed
$5,167
During the day, the Financial District can be chaotic with an influx of office workers and tourists attracted to the many historical sites, museums, and phenomenal views the neighborhood offers. After the workday crowds clear, the neighborhood becomes quiet and calm. Nightlife is confined to a few small areas, as most residents return to their amenity-rich buildings and rooftop patios.
Learn more about Financial District



































































































