$4,000
For Rent
Base rent only. For total monthly price and additional fees, see .
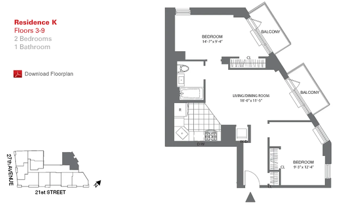
858 ft²
$55 per ft²
3 rooms
2 beds
1 bath
Rental unit
- Astoria
Under NYC law, you can't be charged a broker fee if you didn't hire a broker.
Listed By
Forest Properties Management
This home has been saved by 3 users.
Listing by Forest Properties Management | Brokerage Listing ID: 1493921-13698160
Available
5/12/2026
Days on market
1 day
Last price change
No changes
About
Electricity not included in rent price; residents pays, Early Termination Fee apply price- 2 months of rent and 60 days’ notice, Transfer Fees apply price- ½ of current rent if in middle of lease, $30 NSF Fee will apply for insufficient funds, $50 Late Fee will apply for late rent payments, $100 Lockout fee after hours, $50 trash violation, Storage available $100/$125 per month, Community Building Space Rental $250 for 4 hours, Extra Keys / Fobs $100.
Policies
Sorry, policy info isn’t available right now. Check back later.
Home features
No info on home features
Building amenities
Services and facilities
Concierge
Doorman
Elevator
Live-in super
Parking
Wellness and recreation
Gym
Shared outdoor space
Roof deck
About the building
Exo Astoria
26-38 21st Street, Astoria, NY 11102
115 units
14 stories
2010 built
Property history
Prices shown are base rent only. For total monthly price and additional fees, see .
| Date | Base rent | Event |
|---|---|---|
3/2/2026 | $4,000 | Listed by Forest Properties Management |
3/16/2018 | $3,150 | |
3/2/2018 | $3,150 | Price decreased by 5% |
2/27/2018 | $3,300 | |
3/6/2017 | $2,995 |
Past listing photos
Sign in to take a closer look at how this home compares to similar homes.
Explore Astoria
Transit
| Location | Distance |
|---|---|
NWat 30th Av | 0.43 miles |
NWat Astoria Blvd | 0.43 miles |
Ferryat Astoria Ferry Landing | 0.51 miles |
NWat Broadway | 0.69 miles |
NWat Astoria–Ditmars Blvd | 0.73 miles |
About Astoria
Rental prices shown are base rent before any fees. Visit listings for cost and fees breakdown.
SalesMedian asking price
2 beds
$948.5K
RentalsMedian asking base rent
2 beds
$3,600
Home to some 160,000 residents, Astoria is a bustling neighborhood long known for its great ethnic food, busy commercial thoroughfares and charming single-family homes. Astoria's quick commute into Midtown Manhattan (15 minutes on the N, R, W, or M) and reasonable home prices, however, have recently begun to attract newcomers. New developments are now cropping up and changing the landscape, too. Now, the neighborhood's historic single-family homes and postwar co-op buildings are interspersed with condominiums and upscale rentals.
Learn more about AstoriaSimilar homes
Prices shown are base rent only and don't include any fees. Visit each listing to see a complete cost breakdown.
Similar Homes looks at ad spend and other factors like location, price, and number of beds and baths.




























































































