$4,500
For Rent
Base rent only. For total monthly price and additional fees, see .
Rented 10/7/2025
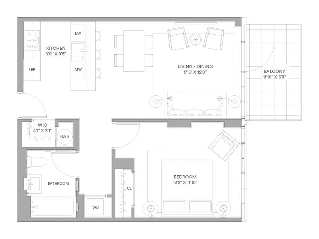
672 ft²
$80 per ft²
3 rooms
1 bed
1 bath
Condo
- Hunters Point
Under NYC law, you can't be charged a broker fee if you didn't hire a broker.
Listed By
This home has been saved by 61 users.
Listing by Ankor Management BH LLC, Limited Liability Broker, 135 East 57th Street, New York, NY 10002
Unavailable
Rented on 10/7/2025
Days on market
98 days
Last price change
No changes
About
*1Bed/1Bath + Private Balcony - AVAILABLE FOR IMMEDIATE MOVE-IN!*
Unit Features: Floor to ceiling windows, private balcony off of living area, custom oak flooring through-out, in-unit washer/dryer, kitchen features a dining island which is open to living space, sophisticated matte white oak millwork is complemented with bright white lacquer cabinets featuring stainless steel Bosch appliances and under cabinet LED lighting.
Policies
Sorry, policy info isn’t available right now. Check back later.
Home features
Central air
Dishwasher
Hardwood floors
Private outdoor space
Balcony
Washer/dryer
Building amenities
Services and facilities
Bike room
Concierge
Doorman
Elevator
Live-in super
Package room
Parking
Wellness and recreation
Children's playroom
Gym
Swimming pool
Shared outdoor space
Courtyard
Roof deck
About the building
GALERIE
22-18 Jackson Avenue, Long Island City, NY 11101
182 units
11 stories
2018 built
Property history
Prices shown are base rent only. For total monthly price and additional fees, see .
| Date | Base rent | Event |
|---|---|---|
10/7/2025 | $4,500 | Rented by Ankor Management BH LLC |
9/22/2025 | $4,500 | In contract |
6/16/2025 | $4,500 | Listed by Ankor Management BH LLC |
7/11/2023 | $4,500 | |
7/5/2023 | $4,500 |
Past listing photos
Sign in to take a closer look at how this home compares to similar homes.
Explore Hunters Point
Transit
| Location | Distance |
|---|---|
Gat 21st St | under 500 feet |
EGM7at 45 Rd–Court House Sq | 0.12 miles |
Gat Long Island City–Court Square | 0.14 miles |
LIRRat Hunterspoint Avenue | 0.17 miles |
7at Hunters Point | 0.18 miles |
Similar homes
Prices shown are base rent only and don't include any fees. Visit each listing to see a complete cost breakdown.
Similar Homes looks at ad spend and other factors like location, price, and number of beds and baths.














































































































