- ft²
4 rooms
1 bed
1 bath
Co-op
- Gramercy Park
Resale
reported sale
Sold on 6/17/2022
Not yet verified by closing records
Seller's agents
This home has been saved by 115 users.
Listing by AVENUE 8 INC, Real Estate Principal Office, 75 Bank Street, Nyc, NY 10014
Maintenance fees
$1,906/mo
Estimated payment
$4,275/mo
Legal disclaimerAll calculations are estimates provided by StreetEasy for informational purposes only. Actual amounts or financing terms may vary. Please contact your mortgage provider for specifics.Taxes
Included in maintenance fees
Tax abatement
No info
About
Seller’s agent
description
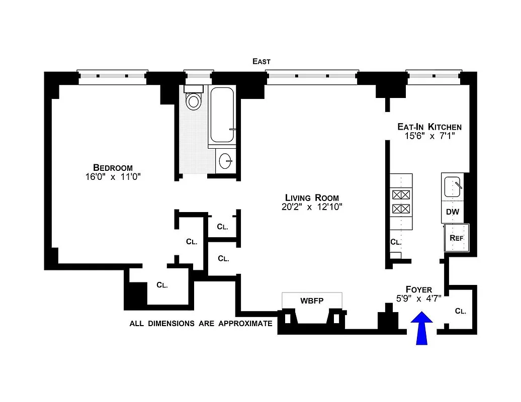
SPECTACULAR OPPORTUNITY IN GRAMERCY
LARGE, BRIGHT, CHARMING 1 BDRM W/ WOOD-BURNING FIREPLACE
BRAND NEW TO MARKET! This spacious one bedroom, one bathroom has abundant light and magnificent original finishes. A perfect example of its era, this pre-war co-op apartment is perfectly laid out with its entry foyer, oversized living room with lovely working wood-burning fireplace, large bedroom and abundant, deep closets.
Policies
Guarantors accepted
Pets allowed
Cats and dogs allowed
Home features
Dishwasher
Fireplace
Wood
Hardwood floors
View
City
Building amenities
Services and facilities
Bike room
Concierge
Doorman
Elevator
Laundry in building
Live-in super
Wellness and recreation
No info on wellness and recreation
Shared outdoor space
Roof deck
About the building
Gramercy House
235 East 22nd Street, New York, NY 10010
339 units
17 stories
1931 built
For sale
12 available units for saleFor rent
0 available units for rentDocuments and permits
View documents and permitsProperty history
- Price Change: No changes
- Days on market: 12 daysThis is the number of days the listing has been on StreetEasy.
| Date | Price | Event |
|---|---|---|
6/17/2022 | $650,000 | Sold by AVENUE 8 INC |
3/16/2022 | $650,000 | In contract |
3/4/2022 | $650,000 | Listed by AVENUE 8 INC |
Past listing photos
Sign in to take a closer look at how this home compares to similar homes.
Explore Gramercy Park
Transit
| Location | Distance |
|---|---|
6at 23rd St | 0.27 miles |
6at 28th St | 0.39 miles |
Lat 3rd Av | 0.4 miles |
Lat 1st Av | 0.43 miles |
RWat 23rd St | 0.43 miles |
About Gramercy Park
Rental prices shown are base rent before any fees. Visit listings for cost and fees breakdown.
SalesMedian asking price
1 bed
$962.5K
RentalsMedian asking base rent
1 bed
$4,947
In the early 20th century, Gramercy Park was synonymous with luxury. Some of the most prominent New Yorkers lived in grand houses along the neighborhood's eponymous park. Today, Gramercy Park is a brief respite from the hustle and bustle of Downtown Manhattan that still retains an old-world vibe. It's not uncommon to see residents dressed in tweed and loafers tottering down Irving Place, a quiet commercial stretch that offers a mix of local shops, restaurants, and pubs. As you head further east, the avenues get busier and more generic.
Gramercy's side streets are lined with walk-ups and large apartment buildings and are more casual than the blocks surrounding the actual park, attracting residents looking for a quintessentially nice New York City neighborhood.














































































