$5,750
For Rent
Base rent only. For total monthly price and additional fees, see .
No longer available 11/29/2025
1,083 ft²
$63 per ft²
3 rooms
1 bed
2 baths
Condo
- Gramercy Park
Under NYC law, you can't be charged a broker fee if you didn't hire a broker.
Listed By
This home has been saved by 102 users.
Listing by Corcoran, Limited Liability Broker, 387 Park Avenue South, New York, NY 10016
Unavailable
No longer available on 11/29/2025
Days on market
9 days
Last price change
No changes
About
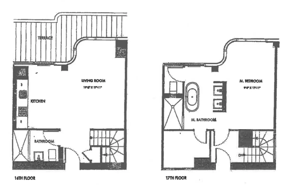
Welcome to your private duplex oasis at the Gramercy Starck-a stunning 1-bedroom, 2-bathroom residence with a private terrace showcasing Empire State Building views. On the main level, an open living and dining area seamlessly connects to the terrace, creating the perfect setting for both entertaining and everyday comfort. The kitchen is equipped with a Sub-Zero refrigerator with double freezer drawers, a Miele oven and cooktop, and a Fisher & Paykel drawer dishwasher.
Policies
Pets allowed
Cats and dogs allowed
Home features
Central air
Dishwasher
Private outdoor space
Terrace
View
City
Building amenities
Services and facilities
Bike room
Doorman
Full-time
Elevator
Laundry in building
Live-in super
Wellness and recreation
Gym
Shared outdoor space
Roof deck
About the building
Gramercy Starck
340 East 23rd Street, New York, NY 10010
207 units
21 stories
2007 built
Property history
Prices shown are base rent only. For total monthly price and additional fees, see .
| Date | Base rent | Event |
|---|---|---|
11/29/2025 | $5,750 | No longer available |
9/28/2025 | $5,750 | In contract |
9/19/2025 | $5,750 | Listed by Corcoran |
Sign in to take a closer look at how this home compares to similar homes.
Explore Gramercy Park
Transit
| Location | Distance |
|---|---|
Lat 1st Av | 0.4 miles |
6at 23rd St | 0.41 miles |
Lat 3rd Av | 0.46 miles |
6at 28th St | 0.48 miles |
LNQRW456at 14th St–Union Square | 0.55 miles |
About Gramercy Park
Rental prices shown are base rent before any fees. Visit listings for cost and fees breakdown.
SalesMedian asking price
1 bed
$980K
RentalsMedian asking base rent
1 bed
$5,250
In the early 20th century, Gramercy Park was synonymous with luxury. Some of the most prominent New Yorkers lived in grand houses along the neighborhood's eponymous park. Today, Gramercy Park is a brief respite from the hustle and bustle of Downtown Manhattan that still retains an old-world vibe. It's not uncommon to see residents dressed in tweed and loafers tottering down Irving Place, a quiet commercial stretch that offers a mix of local shops, restaurants, and pubs. As you head further east, the avenues get busier and more generic.
Gramercy's side streets are lined with walk-ups and large apartment buildings and are more casual than the blocks surrounding the actual park, attracting residents looking for a quintessentially nice New York City neighborhood.
Similar homes
Prices shown are base rent only and don't include any fees. Visit each listing to see a complete cost breakdown.
Similar Homes looks at ad spend and other factors like location, price, and number of beds and baths.








































































































































