$980,000
For Sale
Delisted 12/1/2025
890 ft²
$1,101 per ft²
3 rooms
Studio
1 bath
Condo
- Financial District
Resale
Seller's agent
This home has been saved by 19 users.
Listing by Rent Own Sell LLC, Limited Liability Broker, 160 Broadway, New York, NY 10004
Common charges
$1,100/mo
Estimated payment
$6,810/mo
Legal disclaimerAll calculations are estimates provided by StreetEasy for informational purposes only. Actual amounts or financing terms may vary. Please contact your mortgage provider for specifics.Taxes
$941/mo
Tax abatement
No info
About
Seller’s agent
description
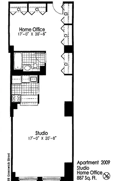
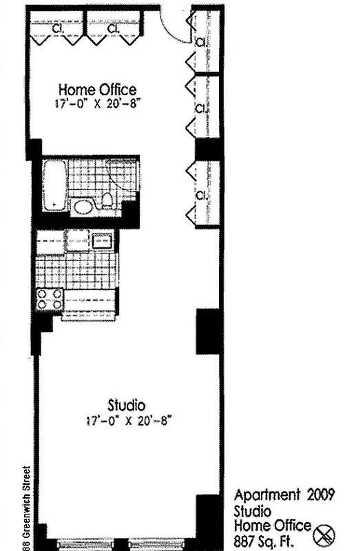
The Largest Studio Home Office Loft in the Building | High Ceilings | Phenomenal Water Views
Welcome to the premier studio home office loft at Greenwich Club Residences—an expansive 898 SF residence perched on the 20th floor with soaring ceilings and oversized south-facing windows that flood the space with sunlight and frame breathtaking views of the New York Harbor, river, and skyline.
Policies
Sorry, policy info isn’t available right now. Check back later.
Home features
Central air
Dishwasher
Hardwood floors
View
Water
Building amenities
Services and facilities
Bike room
Doorman
Full-time
Elevator
Laundry in building
Live-in super
Package room
Storage space
Cold storage
Wellness and recreation
Gym
Shared outdoor space
Roof deck
About the building
Greenwich Club
88 Greenwich Street, New York, NY 10006
452 units
37 stories
1929 built
For sale
13 available units for saleFor rent
8 available units for rentDocuments and permits
View documents and permitsProperty history
- Price Change: No changes
- Days on market: 131 daysThis is the number of days the listing has been on StreetEasy.
| Date | Price | Event |
|---|---|---|
12/1/2025 | $980,000 | Delisted by Rent Own Sell LLC |
7/23/2025 | $980,000 | Listed by Rent Own Sell LLC |
8/27/2015 | $955,000 | |
9/2/2015 | $949,000 | |
6/29/2015 | $949,000 |
Past listing photos
Sign in to take a closer look at how this home compares to similar homes.
Explore Financial District
Transit
| Location | Distance |
|---|---|
1at Rector St | under 500 feet |
RWat Rector St | under 500 feet |
45at Wall St | 0.11 miles |
JZat Broad St | 0.18 miles |
45at Bowling Green | 0.21 miles |
About Financial District
Rental prices shown are base rent before any fees. Visit listings for cost and fees breakdown.
SalesMedian asking price
Studio
$731.5K
RentalsMedian asking base rent
Studio
$4,030
During the day, the Financial District can be chaotic with an influx of office workers and tourists attracted to the many historical sites, museums, and phenomenal views the neighborhood offers. After the workday crowds clear, the neighborhood becomes quiet and calm. Nightlife is confined to a few small areas, as most residents return to their amenity-rich buildings and rooftop patios.
Learn more about Financial District





















































































