$4,500
for rent
Base rent only. For total monthly price and additional fees, see .
Rented 6/1/2025
680 ft²
$79 per ft²
3 rooms
1 bed
1 bath
Condo
- Lenox Hill
Under NYC law, you can't be charged a broker fee if you didn't hire a broker.
Listed by
This home has been saved by 147 users.
Listing by Corcoran, Limited Liability Broker, 590 Madison Avenue, New York, NY 10022
Unavailable
Rented on 6/1/2025
Days on market
11 days
Last price change
No changes
About
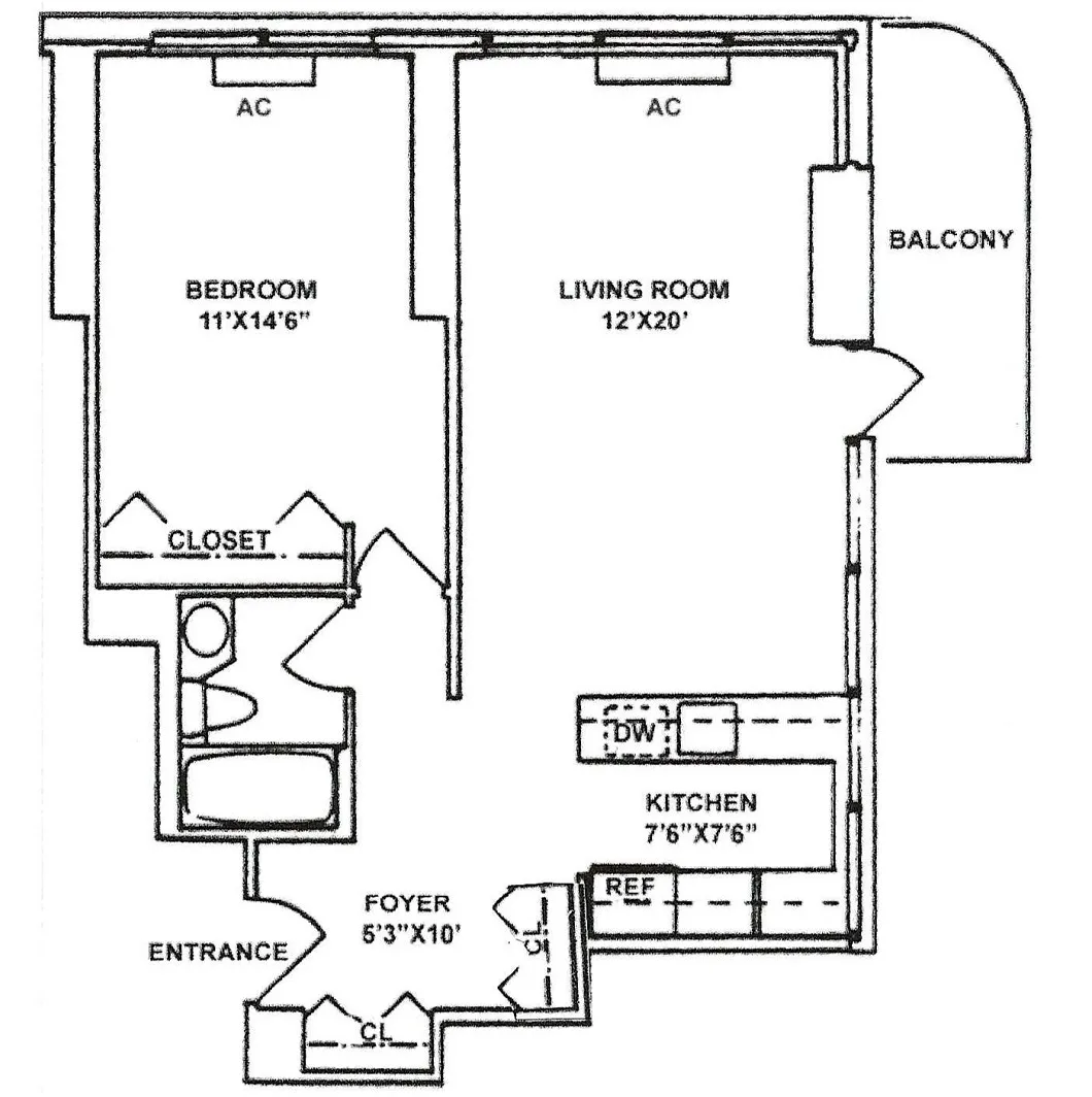
1Bed/1Bath With Balcony
Welcome to Apartment 23B - A Sun-Flooded Corner Residence with Breathtaking City Views
Perched high above the city, Apartment 23B is a beautifully appointed 1-bedroom, 1-bathroom home offering sweeping panoramic views through its expansive wall-to-wall windows. This sun-drenched corner residence enjoys unobstructed southern and western exposures, filling the space with natural light throughout the day.
Policies
Sorry, policy info isn’t available right now. Check back later.
Home features
Central air
Dishwasher
Hardwood floors
Private outdoor space
Balcony
View
City, Skyline
Building amenities
Services and facilities
Bike room
Doorman
Full-time
Elevator
Live-in super
Parking
Storage space
Wellness and recreation
Gym
Swimming pool
Shared outdoor space
Roof deck
About the building
Hampton House
404 East 79th Street, New York, NY 10075
208 units
32 stories
1986 built
Property history
Prices shown are base rent only. For total monthly price and additional fees, see .
| Date | Base rent | Event |
|---|---|---|
6/1/2025 | $4,500 | Rented by Corcoran |
5/12/2025 | $4,500 | In contract |
5/1/2025 | $4,500 | Listed by Corcoran |
11/8/2020 | $3,400 | |
10/20/2020 | $3,400 | Price decreased by 6% |
Past listing photos
Sign in to take a closer look at how this home compares to similar homes.
Explore Lenox Hill
Transit
| Location | Distance |
|---|---|
Qat 86th St | 0.3 miles |
Qat 72nd St | 0.38 miles |
6at 77th St | 0.39 miles |
456at 86th St | 0.53 miles |
6at 68th St–Hunter College | 0.66 miles |
Similar homes
Prices shown are base rent only and don't include any fees. Visit each listing to see a complete cost breakdown.
Similar Homes looks at ad spend and other factors like location, price, and number of beds and baths.















































































































