750 ft²
$713 per ft²
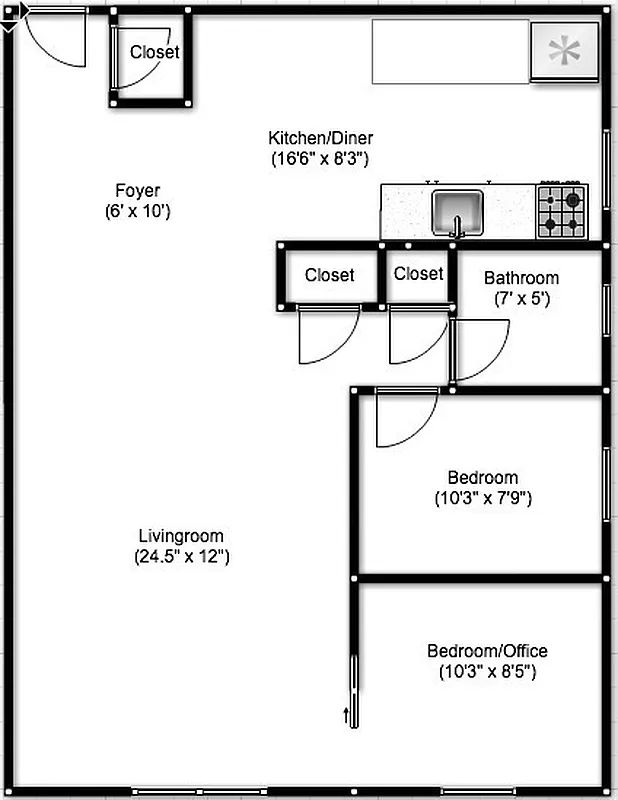
4 rooms
2 beds
1 bath
Co-op
- Lower East Side
Resale
Recorded sale
Sold on 3/11/2015
Verified by closing records
Last listed for $545,000
Listed by
Owner
This home has been saved by 64 users.
Listing by Owner
Maintenance fees
$704/mo
Estimated payment
$3,466/mo
Taxes
Included in maintenance fees
Tax abatement
No info
About
Description
RENOVATED JNR 2 BEDROOM
Open-plan, recently renovated two bed conversion on the Lower Eastside. Features modern kitchen with stainless steel appliances, including dishwasher. Open-plan layout with second converted bedroom/home office. Light and airy with views over the Hillman Housing Coop private gardens. The coop has 24 hour security, community rooms, fully equipped gymnasium and laundry in basement.
Policies
Co-purchase allowed
Gifts allowed
Guarantors accepted
Parents buying allowed
Pets allowed
Pied-a-terre allowed
Home features
Dishwasher
Building amenities
Services and facilities
Bike room
Elevator
Laundry in building
Live-in super
Wellness and recreation
Children's playroom
Gym
Shared outdoor space
No info on shared outdoor space
About the building
Hillman Coop
500 Grand Street, New York, NY 10002
Complex:
Hillman Coop268 units
12 stories
1949 built
For sale
4 available units for saleFor rent
0 available units for rentDocuments and permits
View documents and permitsProperty history
- Price Change: No changes
- Days on market: 29 days
| Date | Price | Event |
|---|---|---|
3/11/2015 | $535,000 | Sold by Owner |
10/26/2014 | $550,000 | No longer available |
9/27/2014 | $550,000 | Listed by Owner |
5/8/2008 | $421,000 |
Sign in to take a closer look at how this home compares to similar homes.
Explore Lower East Side
Transit
| Location | Distance |
|---|---|
FJMZat Essex St | 0.32 miles |
FJMZat Delancey St | 0.36 miles |
Fat East Broadway | 0.39 miles |
BDat Grand St | 0.6 miles |
Fat 2nd Av | 0.62 miles |
About Lower East Side
Rental prices shown are base rent before any fees. Visit listings for cost and fees breakdown.
SalesMedian asking price
2 beds
$1.5M
RentalsMedian asking base rent
2 beds
$5,195
The narrow streets of the Lower East Side were once lined with tenement buildings, shirt factories and bialy shops. Although a few vestiges of the neighborhood's immigrant heritage remain, many of the tenement buildings have been updated and now offer relatively affordable rental options to young New Yorkers looking to live right in the thick of Downtown Manhattan.
There's no getting around it - the LES is a major nightlife destination. In this part of the city, last call is late and often negotiable -- especially if you're a regular. On weekend nights, the neighborhood is packed as crowds overflow from the local bars and take to the streets in search of a late-night falafel fix before heading onto the next party. During the day, the neighborhood chills out as residents nurse their hangovers or head to work slowly after stopping at one of the area's many trendy juice bars or coffee shops.

































































































