$575,000
For Sale
In contract 12/7/2025
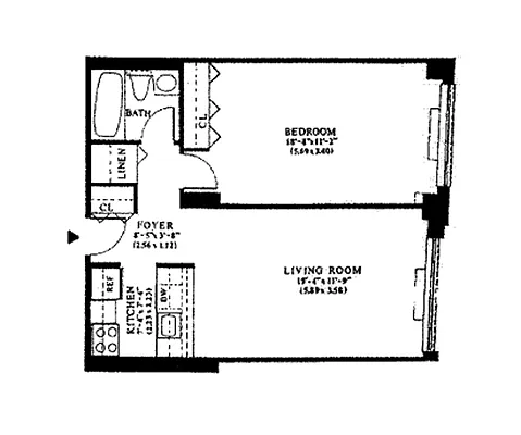
624 ft²
$921 per ft²
3 rooms
1 bed
1 bath
Condo
- Battery Park City
Resale
This home has been saved by 88 users.
Listing by Keller Williams NYC, Limited Liability Broker, 360 Madison Avenue, New York, NY 10017
Common charges
$1,288/mo
Estimated payment
$5,369/mo
Legal disclaimerAll calculations are estimates provided by StreetEasy for informational purposes only. Actual amounts or financing terms may vary. Please contact your mortgage provider for specifics.Taxes
$1,116/mo
Tax abatement
No info
About
Seller’s agent
description
Welcome home to this generously proportioned and sun-filled one-bedroom in the full-service Hudson View West condominium. The expansive living and dining area is centered around a pass-through kitchen with a breakfast bar, perfect for entertaining. The entire space is framed by charming, east-facing views over a quiet, tree-lined street, offering a rare sense of tranquility in the heart of Battery Park City.
Policies
Pets allowed
Cats and dogs allowed
Home features
Central air
Dishwasher
View
City
Building amenities
Services and facilities
Doorman
Full-time
Elevator
Laundry in building
Package room
Parking
Garage
Wheelchair access
Wellness and recreation
Gym
Shared outdoor space
Courtyard
About the building
Hudson View West
300 Albany Street, New York, NY 10280
107 units
9 stories
1986 built
For sale
4 available units for saleFor rent
0 available units for rentDocuments and permits
View documents and permitsProperty history
- Price Change: No changes
- Days on market: 88 daysThis is the number of days the listing has been on StreetEasy.
| Date | Price | Event |
|---|---|---|
12/7/2025 | $575,000 | In contract |
9/10/2025 | $575,000 | Listed by Keller Williams NYC |
7/21/2021 | $525,000 | |
6/10/2021 | $545,000 | |
5/4/2021 | $545,000 |
Past listing photos
Sign in to take a closer look at how this home compares to similar homes.
Explore Battery Park City
Transit
| Location | Distance |
|---|---|
1at Rector St | 0.22 miles |
RWat Rector St | 0.25 miles |
1at WTC Cortlandt | 0.29 miles |
RWat Cortlandt St | 0.3 miles |
45at Wall St | 0.31 miles |
About Battery Park City
Rental prices shown are base rent before any fees. Visit listings for cost and fees breakdown.
SalesMedian asking price
1 bed
$828K
RentalsMedian asking base rent
1 bed
$4,975
Despite its proximity to the Financial District, Battery Park City feels removed from the hustle and bustle of Lower Manhattan. Residents embrace the neighborhood's peaceful environment, and can often be found running, biking, and strolling along its waterfront esplanade.
Although the neighborhood gets busy at lunchtime and happy hour, the streets are quiet at night. This area takes on an almost-suburban feel on the weekends, as families come out to ride bikes, picnic by the river, and cheer for little league games.









































































































































































































































