$950,000
For Sale
1,200 ft²
$791 per ft²
5 rooms
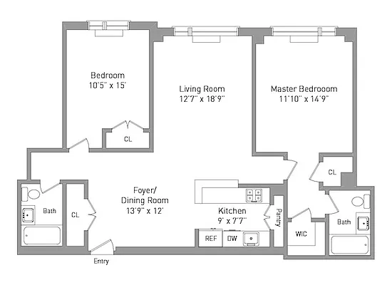
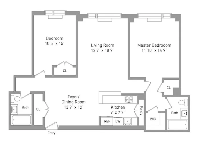
2 beds
2 baths
Condo
- South Harlem
Resale
This home has been saved by 40 users.
Listing by Compass, Corporate Broker, 851 Madison Avenue, New York, NY 10021
Common charges
$1,210/mo
Estimated payment
$6,632/mo
Legal disclaimerAll calculations are estimates provided by StreetEasy for informational purposes only. Actual amounts or financing terms may vary. Please contact your mortgage provider for specifics.Taxes
No info
Tax abatement
421a expires in 2034
About
Seller’s agent
description
This is HOME: This sun-filled 2 bed 2 bath (in triple mint condition as rarely used by original owners) is located in a full-service condominium in Central Harlem. Oversized windows afford open city views and abundant natural light in every room. The modern kitchen with tremendous storage space is open to both the living room and to the separate dining area.
Policies
Pets allowed
Cats and dogs allowed
Home features
Central air
Dishwasher
View
City, Skyline
Building amenities
Services and facilities
Bike room
Concierge
Doorman
Full-time
Elevator
Laundry in building
Live-in super
Parking
Garage
Storage space
Locker/cage
Wheelchair access
Wellness and recreation
Children's playroom
Gym
Media room
Shared outdoor space
Roof deck
About the building
Kalahari
40 West 116th Street, New York, NY 10026
249 units
12 stories
2006 built
For sale
6 available units for saleFor rent
1 available units for rentDocuments and permits
View documents and permitsProperty history
- Price Change: ↓ $49,000 (-4.9%) on 1/1/26
- Days on market: 48 daysThis is the number of days the listing has been on StreetEasy.
| Date | Price | Event |
|---|---|---|
1/1/2026 | $950,000 | Price decreased by 5% |
12/3/2025 | $999,000 | Listed by Compass |
6/30/2008 | $753,000 |
Sign in to take a closer look at how this home compares to similar homes.
Explore South Harlem
Transit
| Location | Distance |
|---|---|
23at 116th St | under 500 feet |
23at 110th St–Central Park North | 0.24 miles |
6at 116th St | 0.38 miles |
BCat 116th St | 0.42 miles |
6at 110th St | 0.46 miles |


















































































































