- ft²
3 rooms
1 bed
1 bath
Condo
- Turtle Bay
Resale
recorded sale
Sold on 3/30/2021
Verified by closing records
Last listed for $690,000
Seller's agent
This home has been saved by 131 users.
Listing by Level Group, Corporate Broker, 5 West 37th Street, New York, NY 10018
Common charges
$533/mo
Estimated payment
$5,371/mo
Legal disclaimerAll calculations are estimates provided by StreetEasy for informational purposes only. Actual amounts or financing terms may vary. Please contact your mortgage provider for specifics.Taxes
$779/mo
Tax abatement
No info
About
Seller’s agent
Buyer’s agent
description
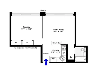
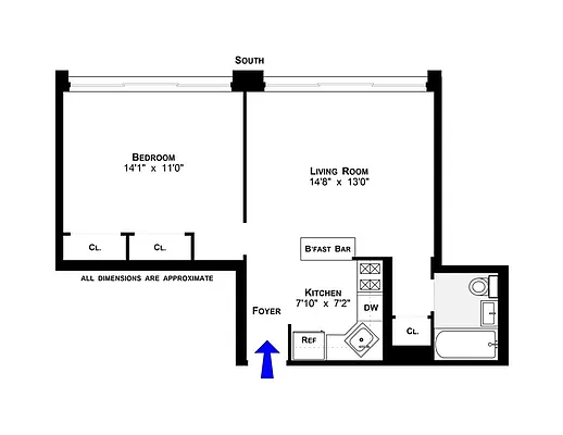
*PRICE REDUCED TO SELL* Unit 17A at 333 East 45th Street is an elevated south-facing one-bedroom unit that provides a rare opportunity in a coveted amenity condo building.
Upon entering the home, the massive windows provide great natural light. See floorplans for reference.
** If this condo will be your primary residence, there is an NYC Primary residence Abatement that would reduce your real estate tax bill.
Policies
Pets allowed
Cats and dogs allowed
Home features
Central air
Dishwasher
Hardwood floors
Private outdoor space
Roof rights
View
City, Water
Building amenities
Services and facilities
Bike room
Doorman
Full-time
Elevator
Live-in super
Parking
Garage
Storage space
Wellness and recreation
Gym
Shared outdoor space
Roof deck
About the building
Lausanne Condominium
333 East 45th Street, New York, NY 10017
165 units
30 stories
1977 built
For sale
2 available units for saleFor rent
2 available units for rentDocuments and permits
View documents and permitsProperty history
- Price Change: ↓ $10,000 (-1.4%) on 12/1/20
- Days on market: 185 daysThis is the number of days the listing has been on StreetEasy.
| Date | Price | Event |
|---|---|---|
3/30/2021 | $670,000 | Sold by Level Group |
2/11/2021 | $690,000 | In contract |
12/1/2020 | $690,000 | Price decreased by 1% |
11/11/2020 | $700,000 | Price decreased by 3% |
10/6/2020 | $720,000 | Price decreased by 4% |
Past listing photos
Sign in to take a closer look at how this home compares to similar homes.
Explore Turtle Bay
Transit
| Location | Distance |
|---|---|
S4567at Grand Central–42nd St | 0.31 miles |
EM6at 51st St | 0.41 miles |
LIRRat Grand Central | 0.42 miles |
EM6at Lexington Av–53rd St | 0.43 miles |
Ferryat E 34th Street Ferry Landing | 0.5 miles |






























































































