$7,500
For Rent
Base rent only. For total monthly price and additional fees, see .
Rented 2/9/2022
1,318 ft²
$68 per ft²
4 rooms
2 beds
2.5 baths
Condo
- Lincoln Square
Under NYC law, you can't be charged a broker fee if you didn't hire a broker.
Listed By
This home has been saved by 38 users.
Listing by Compass, Corporate Broker, 2150 Broadway, New York, NY 10023
Unavailable
Rented on 2/9/2022
Days on market
43 days
Last price change
↓ $500 (-6.3%) on 1/18/22
About
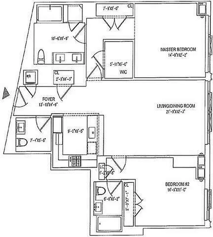
This south facing and bright 2 Bedroom, 2.5 Bath residence offers generous sized rooms, partial Hudson River views, walk-in closets and a gourmet kitchen with high-end finishes. The apartment features a split layout with a large living room perfect for entertaining, two generously sized bedrooms, a powder room and a two full bathrooms.
Policies
Pets allowed
Home features
Dishwasher
Building amenities
Services and facilities
Bike room
Concierge
Doorman
Elevator
Package room
Wellness and recreation
Children's playroom
Gym
Media room
Swimming pool
Shared outdoor space
Garden
About the building
One Riverside Park
50 Riverside Boulevard, New York, NY 10069
274 units
33 stories
2015 built
Property history
Prices shown are base rent only. For total monthly price and additional fees, see .
| Date | Base rent | Event |
|---|---|---|
2/9/2022 | $7,500 | Rented by Compass |
1/27/2022 | $7,500 | In contract |
1/18/2022 | $7,500 | Price decreased by 6% |
12/15/2021 | $8,000 | Listed by Compass |
4/4/2018 | $6,450 |
Past listing photos
Sign in to take a closer look at how this home compares to similar homes.
Explore Lincoln Square
Transit
| Location | Distance |
|---|---|
1at 66th St–Lincoln Center | 0.47 miles |
ABCD1at 59th St–Columbus Circle | 0.58 miles |
123at 72nd St | 0.59 miles |
BCat 72nd St | 0.75 miles |
NRWat 57th St–7th Av | 0.83 miles |
About Lincoln Square
Rental prices shown are base rent before any fees. Visit listings for cost and fees breakdown.
SalesMedian asking price
2 beds
$2.2M
RentalsMedian asking base rent
2 beds
$9,300
Named after and defined by the Lincoln Center for the Performing Arts, Lincoln Square is home to the New York Philharmonic, the New York City Ballet and the Metropolitan Opera, among many other cultural institutions. The neighborhood blends the prewar architecture and and style of the Upper West Side with modern, tall residential buildings. Great subway access at Columbus Circle and proximity to Midtown make this neighborhood popular with those looking to be in the center of it all.
Learn more about Lincoln SquareSimilar homes
Prices shown are base rent only and don't include any fees. Visit each listing to see a complete cost breakdown.
Similar Homes looks at ad spend and other factors like location, price, and number of beds and baths.























































































































































