View this home virtually
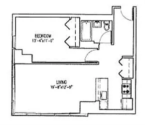
741 ft²
$1,342 per ft²
3 rooms
1 bed
1 bath
Condo
- Hell's Kitchen
Resale
reported sale
Sold on 2/10/2022
Not yet verified by closing records
Seller's agents
This home has been saved by 147 users.
Listing by Compass, Corporate Broker, 10 East 53rd Street, New York, NY 10022
Common charges
$811/mo
Estimated payment
$7,892/mo
Legal disclaimerAll calculations are estimates provided by StreetEasy for informational purposes only. Actual amounts or financing terms may vary. Please contact your mortgage provider for specifics.Taxes
$1,347/mo
Tax abatement
No info
About
Seller’s agent
description
NYC Hideaway in the Middle of it all
High above the hustle and bustle of Manhattan sits this Corner One Bedroom / One Bath home at the Orion Condominium. With south and west exposures there is no shortage of light and views through floor to ceiling windows. The entire home is graced with 9ft ceilings and beautiful hardwood floors. The 19ft by 12ft living room is wonderfully proportioned and is the perfect entertaining room with an open kitchen.
Policies
Pets allowed
Cats and dogs allowed
Smoke-free
Home features
Central air
Dishwasher
Hardwood floors
View
City, Skyline
Building amenities
Services and facilities
Bike room
Concierge
Doorman
Full-time
Elevator
Laundry in building
Package room
Parking
Storage space
Cold storage
Wellness and recreation
Children's playroom
Gym
Media room
Swimming pool
Shared outdoor space
Deck
About the building
ORION Condominium
350 West 42nd Street, New York, NY 10036
551 units
60 stories
2007 built
For sale
26 available units for saleFor rent
7 available units for rentDocuments and permits
View documents and permitsProperty history
- Price Change: ↓ $65,000 (-6.1%) on 4/8/21
- Days on market: 577 daysThis is the number of days the listing has been on StreetEasy.
| Date | Price | Event |
|---|---|---|
12/7/2021 | $972,500 | |
2/10/2022 | $995,000 | Sold by Compass |
10/7/2021 | $995,000 | In contract |
4/8/2021 | $995,000 | Price decreased by 6% |
2/1/2021 | $1,060,000 | Price decreased by 8% |
Past listing photos
Sign in to take a closer look at how this home compares to similar homes.
Explore Hell's Kitchen
Transit
| Location | Distance |
|---|---|
ACENQRWS1237at Times Square–42nd St | 0.14 miles |
123ACEat 34th St–Penn Station | 0.34 miles |
CEat 50th St | 0.39 miles |
NRWat 49th St | 0.4 miles |
BDFM7at 42nd St | 0.45 miles |
























































































































