$4,460
For Rent
Base rent only. For total monthly price and additional fees, see .
Rented 5/23/2024
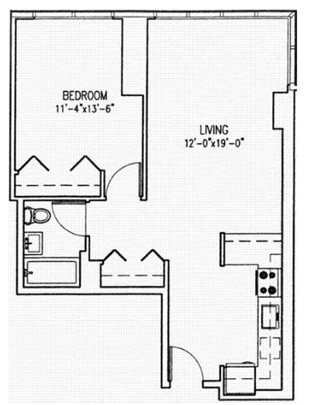
729 ft²
$73 per ft²
3 rooms
1 bed
1 bath
Condo
- Hell's Kitchen
Under NYC law, you can't be charged a broker fee if you didn't hire a broker.
This home has been saved by 30 users.
Listing by CSCC Realty, Inc., Real Estate Principal Office, 121 Benziger Avenue, Staten Island, NY 10301-2301
Unavailable
Rented on 5/23/2024
Days on market
4 days
Last price change
No changes
About
No Broker Fee!
Corner view, beautiful north-facing living room looking onto 42nd Street and Times Square.
Two zones of TVs offered by the owner!!
An exceptional 1-bedroom, 1-bathroom apartment is one-of-a-kind featuring sunny North and East exposures, a chef’s dream kitchen and custom upgrades throughout including a full home automation system by Crestron.
Policies
Pets allowed
Cats and dogs allowed
Smoke-free
Home features
Central air
Dishwasher
Hardwood floors
View
City
Building amenities
Services and facilities
Bike room
Concierge
Doorman
Full-time
Elevator
Laundry in building
Package room
Parking
Storage space
Cold storage
Wellness and recreation
Children's playroom
Gym
Media room
Swimming pool
Shared outdoor space
Deck
Roof deck
About the building
ORION Condominium
350 West 42nd Street, New York, NY 10036
551 units
60 stories
2007 built
Property history
Prices shown are base rent only. For total monthly price and additional fees, see .
| Date | Base rent | Event |
|---|---|---|
5/23/2024 | $4,460 | Rented by CSCC Realty, Inc. |
5/23/2024 | $4,460 | In contract |
5/19/2024 | $4,460 | Listed by CSCC Realty, Inc. |
2/16/2021 | $3,450 | |
12/8/2020 | $3,450 |
Past listing photos
Sign in to take a closer look at how this home compares to similar homes.
Explore Hell's Kitchen
Transit
| Location | Distance |
|---|---|
ACENQRWS1237at Times Square–42nd St | 0.14 miles |
123ACEat 34th St–Penn Station | 0.34 miles |
CEat 50th St | 0.39 miles |
NRWat 49th St | 0.4 miles |
BDFM7at 42nd St | 0.45 miles |
Similar homes
Prices shown are base rent only and don't include any fees. Visit each listing to see a complete cost breakdown.
Similar Homes looks at ad spend and other factors like location, price, and number of beds and baths.












































































































































































