$4,975
For Rent
Base rent only. For total monthly price and additional fees, see .
Rented 6/11/2025
- ft²
1 room
1 bed
1 bath
Rental unit
- Turtle Bay
Under NYC law, you can't be charged a broker fee if you didn't hire a broker.
Listed By
This home has been saved by 10 users.
Listing by Manhattan Realty Group, Corporate Broker, 211 East 43rd, New York, NY 10017
Unavailable
Rented on 6/11/2025
Days on market
40 days
Last price change
↑ $300 (+5.7%) on 6/10/25
About
Oversized 1-Bedroom in Full-Service Luxury Building |
First month, and security deposit of one month due at lease signing. Application fee is $20 per each applicant/ guarantor.
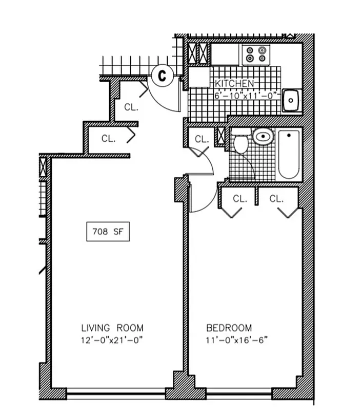
This spacious, south-facing one-bedroom is filled with natural light and offers exceptional storage, including a double-wide bedroom closet, a large entryway closet, and a linen closet.
Policies
Pets allowed
Home features
Central air
Dishwasher
Hardwood floors
View
City
Building amenities
Services and facilities
Doorman
Elevator
Laundry in building
Live-in super
Package room
Parking
Garage
Wellness and recreation
Gym
Shared outdoor space
Roof deck
About the building
Oxford East
333 East 49th Street, New York, NY 10017
204 units
12 stories
1965 built
Property history
Prices shown are base rent only. For total monthly price and additional fees, see .
| Date | Base rent | Event |
|---|---|---|
6/12/2025 | $4,975 | Rented by Manhattan Realty Group |
6/11/2025 | $4,975 | No longer available |
6/10/2025 | $4,975 | Price increased by 6% |
5/2/2025 | $4,675 | Listed by Manhattan Realty Group |
4/20/2023 | $4,400 |
Past listing photos
Sign in to take a closer look at how this home compares to similar homes.
Explore Turtle Bay
Transit
| Location | Distance |
|---|---|
EM6at Lexington Av–53rd St | 0.25 miles |
EM6at 51st St | 0.29 miles |
LIRRat Grand Central | 0.42 miles |
S4567at Grand Central–42nd St | 0.43 miles |
EMat 5th Av–53rd St | 0.51 miles |
Similar homes
Prices shown are base rent only and don't include any fees. Visit each listing to see a complete cost breakdown.
Similar Homes looks at ad spend and other factors like location, price, and number of beds and baths.












































































































