$9,000
For Rent
Base rent only. For total monthly price and additional fees, see .
Rented 6/23/2025
1,560 ft²
$69 per ft²
6 rooms
2 beds
2 baths
Condo
- Gramercy Park
Under NYC law, you can't be charged a broker fee if you didn't hire a broker.
Listed By
This home has been saved by 119 users.
Listing by Compass, Corporate Broker, 110 5th Avenue, New York, NY 10011
Unavailable
Rented on 6/23/2025
Days on market
7 days
Last price change
No changes
About
***APPLICATIONS PENDING***
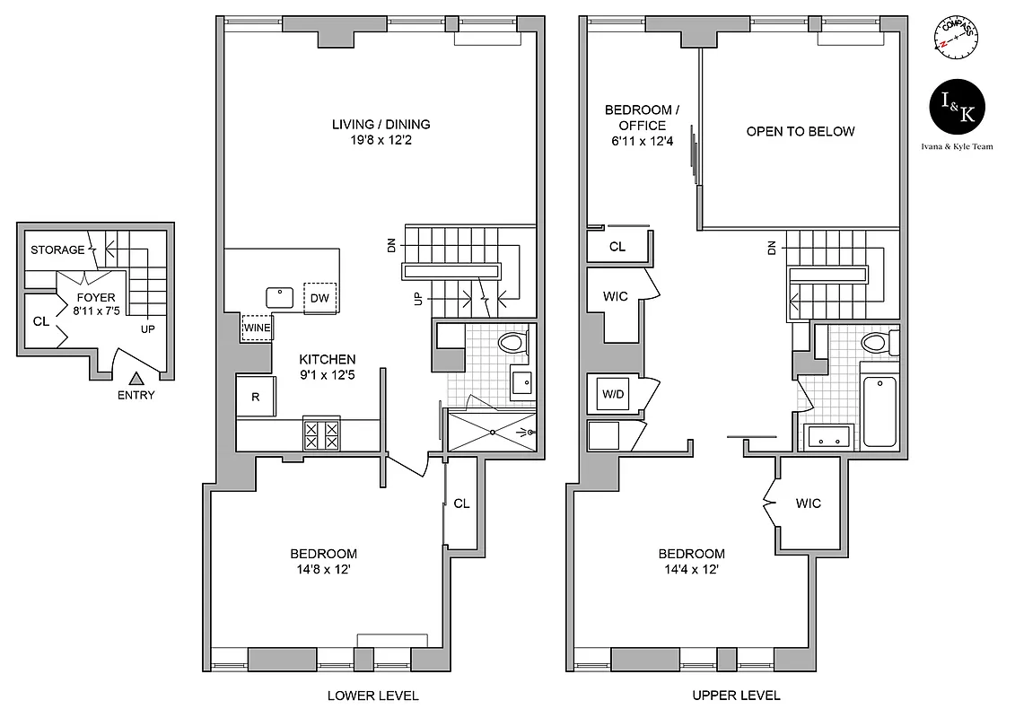
Welcome to unit 532 at Rutherford Place! This fully renovated triplex boasts 2 large bedrooms, a smaller bedroom/office which overlooks the living room, an additional home office space and two renovated bathrooms, all with a striking unique layout and plenty of natural light.
The main floor features a stunning open kitchen with high-end stainless steel appliances and breakfast bar as well as a roomy dining area.
Policies
Pets allowed
Cats and dogs allowed
Home features
Central air
Dishwasher
Hardwood floors
View
City
Washer/dryer
Building amenities
Services and facilities
Bike room
Doorman
Full-time
Elevator
Live-in super
Valet service
Wellness and recreation
Gym
Shared outdoor space
Roof deck
About the building
Rutherford Place
305 2nd Avenue, New York, NY 10003
127 units
9 stories
1903 built
Property history
Prices shown are base rent only. For total monthly price and additional fees, see .
| Date | Base rent | Event |
|---|---|---|
6/23/2025 | $9,000 | Rented by Compass |
5/15/2025 | $9,000 | In contract |
5/8/2025 | $9,000 | Listed by Compass |
Past listing photos
Sign in to take a closer look at how this home compares to similar homes.
Explore Gramercy Park
Transit
| Location | Distance |
|---|---|
Lat 3rd Av | 0.18 miles |
Lat 1st Av | 0.24 miles |
LNQRW456at 14th St–Union Square | 0.3 miles |
6at 23rd St | 0.36 miles |
6at Astor Place | 0.49 miles |
About Gramercy Park
Rental prices shown are base rent before any fees. Visit listings for cost and fees breakdown.
SalesMedian asking price
2 beds
$2.05M
RentalsMedian asking base rent
2 beds
$5,995
In the early 20th century, Gramercy Park was synonymous with luxury. Some of the most prominent New Yorkers lived in grand houses along the neighborhood's eponymous park. Today, Gramercy Park is a brief respite from the hustle and bustle of Downtown Manhattan that still retains an old-world vibe. It's not uncommon to see residents dressed in tweed and loafers tottering down Irving Place, a quiet commercial stretch that offers a mix of local shops, restaurants, and pubs. As you head further east, the avenues get busier and more generic.
Gramercy's side streets are lined with walk-ups and large apartment buildings and are more casual than the blocks surrounding the actual park, attracting residents looking for a quintessentially nice New York City neighborhood.
Similar homes
Prices shown are base rent only and don't include any fees. Visit each listing to see a complete cost breakdown.
Similar Homes looks at ad spend and other factors like location, price, and number of beds and baths.



























































































































































































































































