View this home virtually
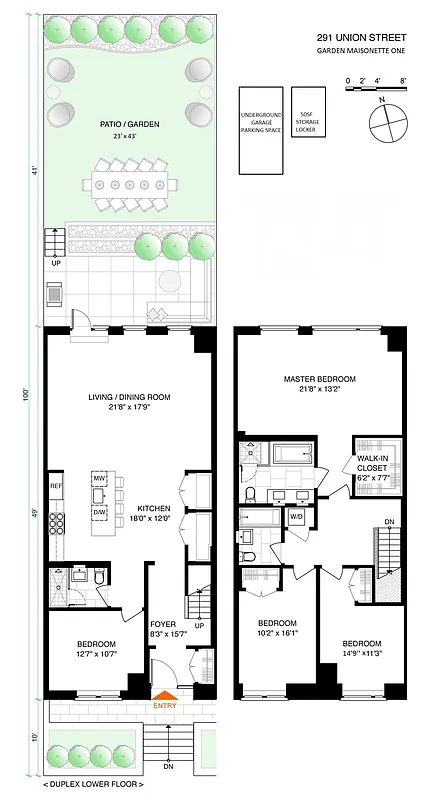
2,304 ft²
$1,334 per ft²
7 rooms
4 beds
3 baths
Condo
- Carroll Gardens
recorded sale
Sold on 1/31/2019
Verified by closing records
Last listed for $3,225,000
Seller's agents
This home has been saved by 45 users.
Listing by Corcoran, Limited Liability Broker, 375 Schermerhorn Street, Brooklyn, NY 11217 | Brokerage Listing ID: 5539776
Common charges
$2,470/mo
Estimated payment
Taxes
$1,350/mo
Tax abatement
421a expires in 2027
About
Seller’s agent
Buyer’s agent
description
RARE- 22ft wide, 4- bedroom, 3-bath, duplex maisonette condo with 3290sf of combined interior and private outdoor space, plus luxury amenities including garaged PARKING and 24-hr doorman security- all in a great school district. Welcome to the Sackett Union, Carroll Gardens only full service condominiums offering the highest quality residences for homeowners with impeccable tastes.
Policies
Sorry, policy info isn’t available right now. Check back later.
Home features
Central air
Dishwasher
Private outdoor space
Garden, Patio
Washer/dryer
Building amenities
Services and facilities
Bike room
Doorman
Elevator
Laundry in building
Live-in super
Package room
Parking
Garage
Storage space
Wellness and recreation
Children's playroom
Gym
Shared outdoor space
Deck
Roof deck
About the building
Sackett Union
291 Union Street, Brooklyn, NY 11231
32 units
7 stories
2008 built
For sale
0 available units for saleFor rent
0 available units for rentDocuments and permits
View documents and permitsProperty history
- Price Change: ↓ $274,999 (-7.9%) on 10/1/18
- Days on market: 64 daysThis is the number of days the listing has been on StreetEasy.
| Date | Price | Event |
|---|---|---|
1/31/2019 | $3,075,000 | Sold by Corcoran |
2/2/2019 | $3,225,000 | No longer available |
11/6/2018 | $3,225,000 | In contract |
10/1/2018 | $3,225,000 | Price decreased by 8% |
9/3/2018 | $3,499,999 | Listed by Corcoran |
Past listing photos
Sign in to take a closer look at how this home compares to similar homes.
Explore Carroll Gardens
Transit
| Location | Distance |
|---|---|
FGat Carroll St | 0.16 miles |
FGat Bergen St | 0.31 miles |
FGRat Smith–9th St | 0.57 miles |
ACGat Hoyt & Schermerhorn | 0.69 miles |
R2345at Borough Hall/Court St | 0.71 miles |
About Carroll Gardens
Rental prices shown are base rent before any fees. Visit listings for cost and fees breakdown.
SalesMedian asking price
4 beds
$3.28M
RentalsMedian asking base rent
4 beds
$14,500
Carroll Gardens is at once the heart of old-school Brooklyn and a showcase for the borough's brownstone boom. The neighborhood has long been known for its red-sauce Italian joints and lively street life. But now, staples like Caputo's Bake Shop and Monteleone's Bakery and Café abut upscale stroller shops, yoga studios and fro-yo joints. Despite the newcomers, the neighborhood still feels like a small town, one of the few places where you might know your neighbors, your postman and your butcher by name.
Learn more about Carroll Gardens
























































































































































































