$6,950
for rent
Base rent only. For total monthly price and additional fees, see .
Rented 8/10/2020
1,200 ft²
$69 per ft²
2 rooms
1 bed
1 bath
Condo
- Noho
Under NYC law, you can't be charged a broker fee if you didn't hire a broker.
Listed by
This home has been saved by 22 users.
Listing by Corcoran, Limited Liability Broker, 851 Madison Avenue, New York, NY 10021
Unavailable
Rented on 8/10/2020
Days on market
45 days
Last price change
No changes
About
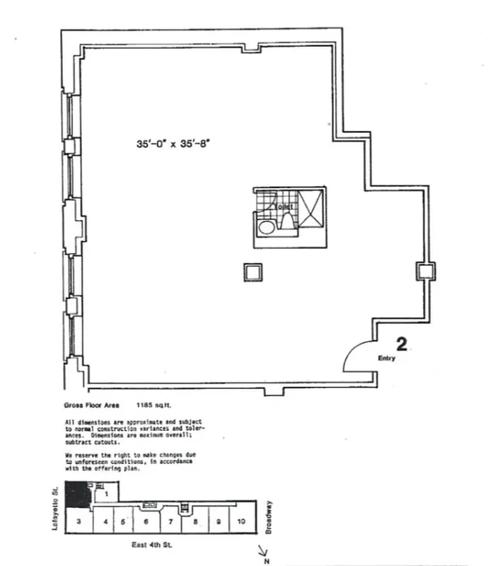
Prime loft in the renowned Silk Building in the heart of Noho. With soaring, beamed ceilings, oversized windows, and hardwood floors throughout its open floor plan, this is an increasingly rare find. This spacious loft lends itself seamlessly to full-time office or studio space, in which one may also reside. Recently renovated to include an updated bathroom, kitchenette and walk-in utilities closet, every modern comfort is accounted for.
Policies
Pets allowed
Cats and dogs allowed
Home features
Hardwood floors
View
City, Skyline
Building amenities
Services and facilities
Bike room
Concierge
Doorman
Full-time
Elevator
Laundry in building
Wellness and recreation
No info on wellness and recreation
Shared outdoor space
Deck
Roof deck
About the building
Silk Building
14 East 4th Street, New York, NY 10012
56 units
12 stories
1912 built
Property history
Prices shown are base rent only. For total monthly price and additional fees, see .
| Date | Base rent | Event |
|---|---|---|
9/19/2020 | $6,950 | Rented by Corcoran |
8/10/2020 | $6,950 | Temporarily off market |
7/26/2020 | $6,950 | Listed by Corcoran |
7/17/2020 | $6,950 | Temporarily off market |
6/17/2020 | $6,950 | Listed by Corcoran |
Past listing photos
Sign in to take a closer look at how this home compares to similar homes.
Explore Noho
Transit
| Location | Distance |
|---|---|
RWat 8th St–NYU | 0.13 miles |
BDFM6at Bleecker St | 0.14 miles |
6at Astor Place | 0.18 miles |
BDFM6at Broadway–Lafayette St | 0.21 miles |
Fat 2nd Av | 0.3 miles |
Similar homes
Prices shown are base rent only and don't include any fees. Visit each listing to see a complete cost breakdown.
Similar Homes looks at ad spend and other factors like location, price, and number of beds and baths.















































































































