$943,000
For Sale
In contract 12/11/2025
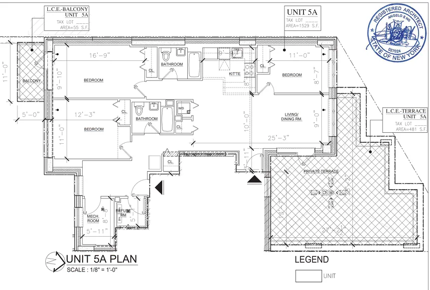
1,529 ft²
$616 per ft²
6 rooms
3 beds
2 baths
Condo
- Woodside
Sponsor unit
Sponsor unitA unit being sold for the first time. It’s typically owned by the building. For condos, this is often the developer. For co-ops, this is often the building’s original owner before it went co-op.
This home has been saved by 81 users.
Listing by Style And Haus NYC LLC, Real Estate Principal Office, 60-20 Woodside Avenue Suite, Woodside, NY 11377
Common charges
$744/mo
Estimated payment
$5,637/mo
Legal disclaimerAll calculations are estimates provided by StreetEasy for informational purposes only. Actual amounts or financing terms may vary. Please contact your mortgage provider for specifics.Taxes
No info
Tax abatement
No info
About
Seller’s agent
description
Experience modern living in this beautifully designed 3-bedroom, 2-bathroom condo, featuring a spacious layout, private balcony, and large terrace. Located in a newly constructed building just half a block from the subway, you’ll enjoy the ease of city access with the tranquility of a peaceful home. The open-concept design offers generous living space and sleek contemporary finishes—perfect for both everyday living and entertaining.
Policies
Pets allowed
Home features
Dishwasher
Hardwood floors
Private outdoor space
Balcony, Roof deck, Terrace
View
City, Skyline
Washer/dryer
Building amenities
Services and facilities
Elevator
Wellness and recreation
No info on wellness and recreation
Shared outdoor space
Courtyard
About the building
Sunlight Terrace
52-16 Roosevelt Avenue, Woodside, NY 11377
10 units
6 stories
2021 built
For sale
4 available units for saleFor rent
0 available units for rentDocuments and permits
View documents and permitsProperty history
- Price Change: ↓ $15,000 (-1.6%) on 10/23/25
- Days on market: 121 daysThis is the number of days the listing has been on StreetEasy.
| Date | Price | Event |
|---|---|---|
12/11/2025 | $943,000 | In contract |
10/23/2025 | $943,000 | Price decreased by 2% |
8/25/2025 | $958,000 | Price decreased by 3% |
8/25/2025 | $988,000 | Listed by Style And Haus NYC LLC |
8/13/2025 | $988,000 | Temporarily off market |
Sign in to take a closer look at how this home compares to similar homes.
Explore Woodside
Transit
| Location | Distance |
|---|---|
7at Lincoln Av–52nd St | under 500 feet |
7at Bliss St–46th St | 0.32 miles |
7at Woodside Av–61st St | 0.46 miles |
LIRRat Woodside | 0.48 miles |
7at Lowery St–40th St | 0.64 miles |

















































































































































































































