$649,000
For Sale
Temporarily off market 12/27/2025
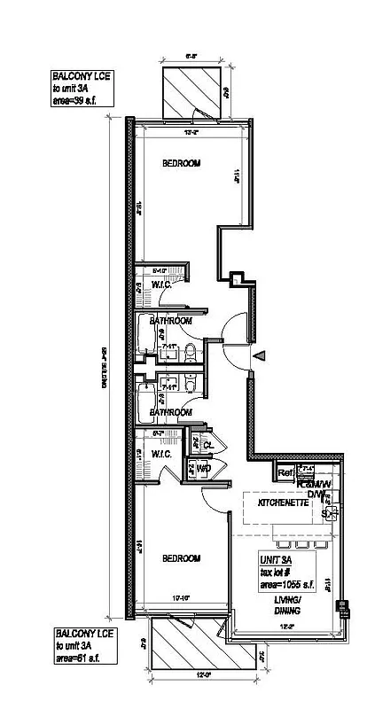
1,055 ft²
$615 per ft²
5 rooms
2 beds
2 baths
Condo
- The Rockaways
Sponsor unit
Sponsor unitA unit being sold for the first time. It’s typically owned by the building. For condos, this is often the developer. For co-ops, this is often the building’s original owner before it went co-op.
Seller's agent
This home has been saved by 29 users.
Listing by ALG NY Management, LLC., Limited Liability Broker, 82 17 153rd Avenue Ste, Howard Beach, NY 11414
Listing updated in the last 2 days
Common charges
$720/mo
Estimated payment
$5,711/mo
Legal disclaimerAll calculations are estimates provided by StreetEasy for informational purposes only. Actual amounts or financing terms may vary. Please contact your mortgage provider for specifics.Taxes
$1,005/mo
Tax abatement
No info
About
Seller’s agent
description
END OF SUMMER SPECIAL!!! 11 Luxury Condominiums Including one- and two-bedrooms located one-half block from the Atlantic Ocean. Enjoy your evenings beholding the sunset while savoring the sounds of the crashing waves from the nearby ocean, or perhaps just enjoy an evening stroll on the local Boardwalk.
Policies
Sorry, policy info isn’t available right now. Check back later.
Home features
Dishwasher
Hardwood floors
Private outdoor space
Balcony, Roof rights
View
City, Water
Washer/dryer
Building amenities
Services and facilities
Elevator
Wheelchair access
Wellness and recreation
No info on wellness and recreation
Shared outdoor space
Roof deck
About the building
Surf House 1
163 Beach 96th Street, Far Rockaway, NY 11693
11 units
4 stories
2021 built
For sale
0 available units for saleFor rent
0 available units for rentDocuments and permits
View documents and permitsProperty history
- Price Change: ↓ $50,000 (-7.2%) on 9/5/25
- Days on market: 325 daysThis is the number of days the listing has been on StreetEasy.
| Date | Price | Event |
|---|---|---|
12/27/2025 | $649,000 | Temporarily off market |
9/5/2025 | $649,000 | Price decreased by 7% |
5/10/2025 | $699,000 | Price decreased by 3% |
2/5/2025 | $719,000 | Listed by ALG NY Management, LLC. |
10/30/2022 | $799,999 |
Sign in to take a closer look at how this home compares to similar homes.
Explore The Rockaways
Transit
| Location | Distance |
|---|---|
Sat Beach 98th St | 0.16 miles |
Sat Beach 90th St | 0.31 miles |
Sat Beach 105th St | 0.51 miles |
Sat Rockaway Park–Beach 116th | 1.07 miles |
Aat Beach 67th St | 1.13 miles |































































































































































































