View this home virtually
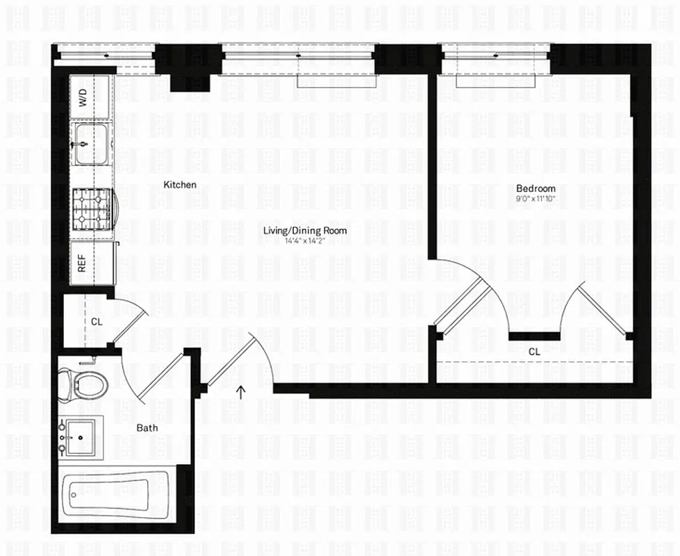
477 ft²
$1,278 per ft²
1 room
1 bed
1 bath
Condo
- Hell's Kitchen
Resale
recorded sale
Sold on 12/13/2024
Verified by closing records
Last listed for $690,500
Seller's agent
This home has been saved by 130 users.
Listing by Oxford Property Group, Limited Liability Broker, 401 New Karner Road, Albany, NY 12205
Common charges
$653/mo
Estimated payment
$4,492/mo
Legal disclaimerAll calculations are estimates provided by StreetEasy for informational purposes only. Actual amounts or financing terms may vary. Please contact your mortgage provider for specifics.Taxes
$479/mo
Tax abatement
No info
About
Seller’s agent
Buyer’s agent
description
Introducing 5HN at The 505! This intelligently designed, pindrop quiet one bedroom home in the heart of Midtown West features an open layout, with unobstructed city views. The kitchen boasts marble countertops with custom cabinetry imported from Italy, paneled dishwasher, gas range and convection oven. This modern apartment features an abundance of closet space, open floor plan, in-unit washer and dryer, central air, hardwood floors throughout, and large windows facing north.
Policies
Pets allowed
Cats and dogs allowed
Home features
Central air
Dishwasher
Hardwood floors
View
City, Skyline
Washer/dryer
Building amenities
Services and facilities
Bike room
Concierge
Doorman
Full-time
Elevator
Laundry in building
Live-in super
Wheelchair access
Wellness and recreation
Gym
Shared outdoor space
Courtyard
Garden
Roof deck
About the building
The 505
505 West 47th Street, New York, NY 10036
108 units
7 stories
2008 built
For sale
2 available units for saleFor rent
1 available units for rentDocuments and permits
View documents and permitsProperty history
- Price Change: ↓ $8,000 (-1.1%) on 5/14/24
- Days on market: 131 daysThis is the number of days the listing has been on StreetEasy.
| Date | Price | Event |
|---|---|---|
12/13/2024 | $610,000 | Sold by Oxford Property Group |
5/30/2024 | $690,500 | Delisted by Oxford Property Group |
5/27/2024 | $690,500 | In contract |
5/14/2024 | $690,500 | Price decreased by 1% |
4/18/2024 | $698,500 | Price decreased by 0% |
Past listing photos
Sign in to take a closer look at how this home compares to similar homes.
Explore Hell's Kitchen
Transit
| Location | Distance |
|---|---|
CEat 50th St | 0.37 miles |
ACENQRWS1237at Times Square–42nd St | 0.41 miles |
1at 50th St | 0.51 miles |
NRWat 49th St | 0.53 miles |
Ferryat W 39th Street Ferry Landing | 0.54 miles |

























































































































































