$5,350
For Rent
Base rent only. For total monthly price and additional fees, see .
Rented 3/13/2024
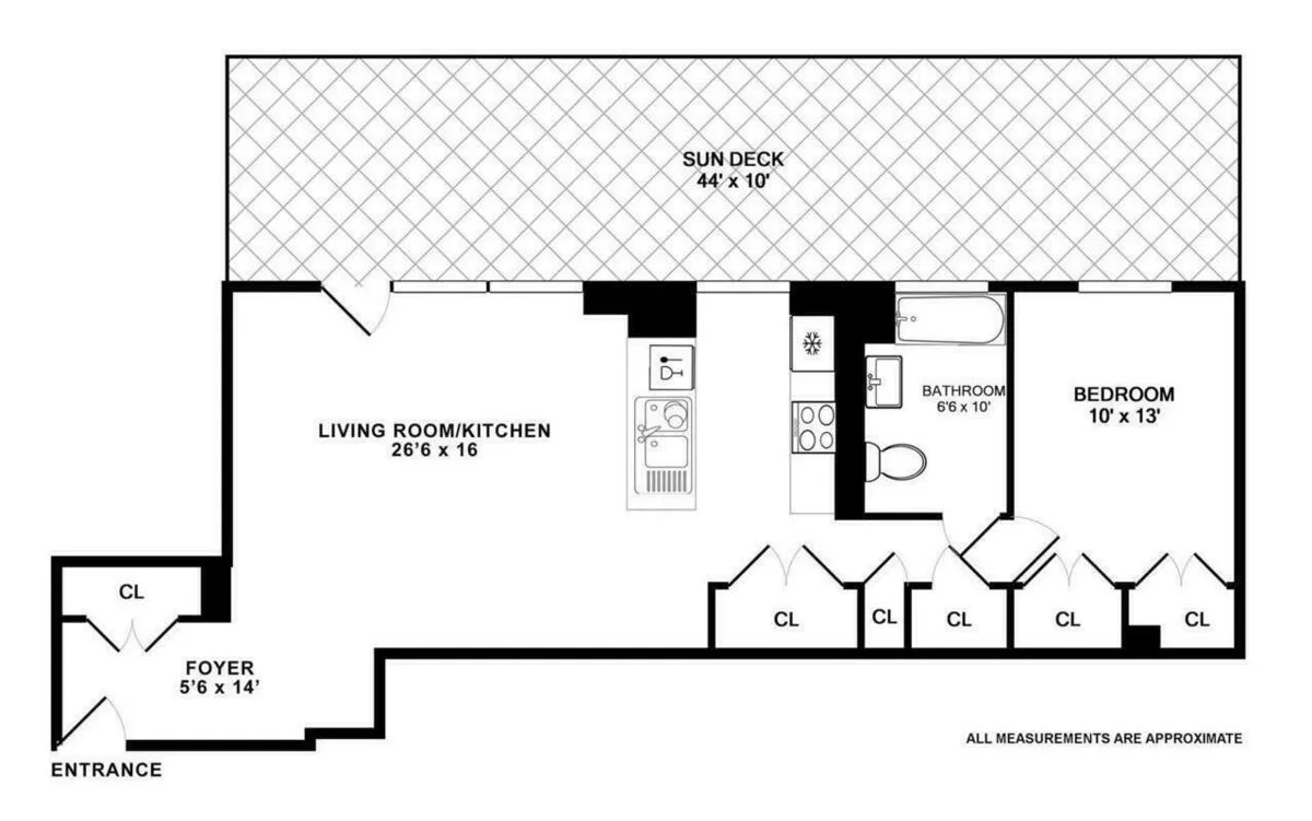
845 ft²
$75 per ft²
3 rooms
1 bed
1 bath
Condo
- Williamsburg
Under NYC law, you can't be charged a broker fee if you didn't hire a broker.
Listed By
This home has been saved by 46 users.
Listing by Corcoran, Limited Liability Broker, 810 Seventh Avenue, New York, NY 10019
Unavailable
Rented on 3/13/2024
Days on market
32 days
Last price change
↓ $100 (-1.8%) on 2/19/24
About
Live Directly on the Park! Washer/Dryer in Unit! Private Outdoor Space! 5 Closets!
*Large 1 Bedroom / 1 Bath with Private Outdoor Space Directly Across from McCarren Park*
This extraordinary building, designed by the award winning architect Karl Fischer and interiors designed by Andres Escobar, is a shining 13 story tower on McCarren Park with the most dramatic park and city views.
Policies
Pets allowed
Cats and dogs allowed
Home features
Central air
Dishwasher
Hardwood floors
Private outdoor space
Garden, Terrace
View
Garden
Washer/dryer
Building amenities
Services and facilities
Concierge
Doorman
Part-time
Elevator
Live-in super
Parking
Wellness and recreation
Gym
Shared outdoor space
Courtyard
Roof deck
About the building
The Aurora, 30 Bayard
30 Bayard Street, Brooklyn, NY 11211
- units
- stories
- built
Property history
Prices shown are base rent only. For total monthly price and additional fees, see .
| Date | Base rent | Event |
|---|---|---|
3/13/2024 | $5,350 | Rented by Corcoran |
3/1/2024 | $5,350 | In contract |
2/19/2024 | $5,350 | Price decreased by 2% |
1/29/2024 | $5,450 | Listed by Corcoran |
Past listing photos
Sign in to take a closer look at how this home compares to similar homes.
Explore Williamsburg
Transit
| Location | Distance |
|---|---|
Lat Bedford Av | 0.3 miles |
GLat Metropolitan Av | 0.32 miles |
GLat Lorimer St | 0.32 miles |
Gat Nassau Av | 0.34 miles |
Lat Graham Av | 0.44 miles |
About Williamsburg
Rental prices shown are base rent before any fees. Visit listings for cost and fees breakdown.
SalesMedian asking price
1 bed
$1.05M
RentalsMedian asking base rent
1 bed
$4,600
Williamsburg is Brooklyn's booming epicenter with a well-deserved and worldwide reputation for being an influential hub thanks to a thriving cultural scene. Here you will find eye-catching new construction, brownstones, and prewars sitting next to historic buildings on streets dotted with restaurants, art spaces, boutiques, and more. With a Manhattan-facing waterfront (hello Domino Park!) and its large weekend markets (we're talking about you, Smorgasburg, and Artists & Fleas), the neighborhood is ideal for strolling and people watching. Another fringe benefit is Williamsburg's proximity to Manhattan via the G, L, M, and N subway lines.
Learn more about WilliamsburgSimilar homes
Prices shown are base rent only and don't include any fees. Visit each listing to see a complete cost breakdown.
Similar Homes looks at ad spend and other factors like location, price, and number of beds and baths.
























































































































































































































































