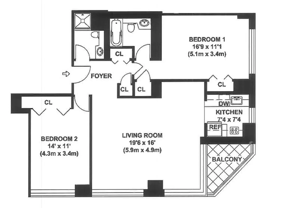
1,040 ft²
$1,177 per ft²
4 rooms
2 beds
2 baths
Condo
- Turtle Bay
Resale
recorded sale
Sold on 4/8/2025
Verified by closing records
Last listed for $1,295,000
Seller's agents
This home has been saved by 65 users.
Listing by Brown Harris Stevens, Real Estate Principal Office, 100 Fifth Avenue, New York, NY 10011
Common charges
$1,772/mo
Estimated payment
$9,815/mo
Legal disclaimerAll calculations are estimates provided by StreetEasy for informational purposes only. Actual amounts or financing terms may vary. Please contact your mortgage provider for specifics.Taxes
$1,466/mo
Tax abatement
No info
About
Seller’s agent
description
A spacious split two-bedroom, two-bath home. Captivating open northwest views of the Manhattan Skyline from living and dining area. The separate windowed kitchen flows nicely into the living and dining area, which opens up to a west-facing balcony.
Both bedrooms are generously sized, with one featuring an ensuite bathroom. You'll appreciate the hardwood floors, oversized new windows, in-unit washer and dryer, and good closet space in this home.
Policies
Sorry, policy info isn’t available right now. Check back later.
Home features
Central air
Private outdoor space
Balcony
View
Skyline
Washer/dryer
Building amenities
Services and facilities
Concierge
Doorman
Full-time
Elevator
Laundry in building
Live-in super
Wellness and recreation
No info on wellness and recreation
Shared outdoor space
No info on shared outdoor space
About the building
The Club at Turtle Bay
236 East 47th Street, New York, NY 10017
173 units
38 stories
1988 built
For sale
5 available units for saleFor rent
4 available units for rentDocuments and permits
View documents and permitsProperty history
- Price Change: No changes
- Days on market: 50 daysThis is the number of days the listing has been on StreetEasy.
| Date | Price | Event |
|---|---|---|
4/8/2025 | $1,225,000 | Sold by Brown Harris Stevens |
2/28/2025 | $1,295,000 | In contract |
1/9/2025 | $1,295,000 | Listed by Brown Harris Stevens |
2/21/2013 | $1,080,000 | |
2/22/2013 | $1,295,000 |
Past listing photos
Sign in to take a closer look at how this home compares to similar homes.
Explore Turtle Bay
Transit
| Location | Distance |
|---|---|
S4567at Grand Central–42nd St | 0.26 miles |
EM6at 51st St | 0.27 miles |
LIRRat Grand Central | 0.29 miles |
EM6at Lexington Av–53rd St | 0.31 miles |
EMat 5th Av–53rd St | 0.48 miles |





































































































































