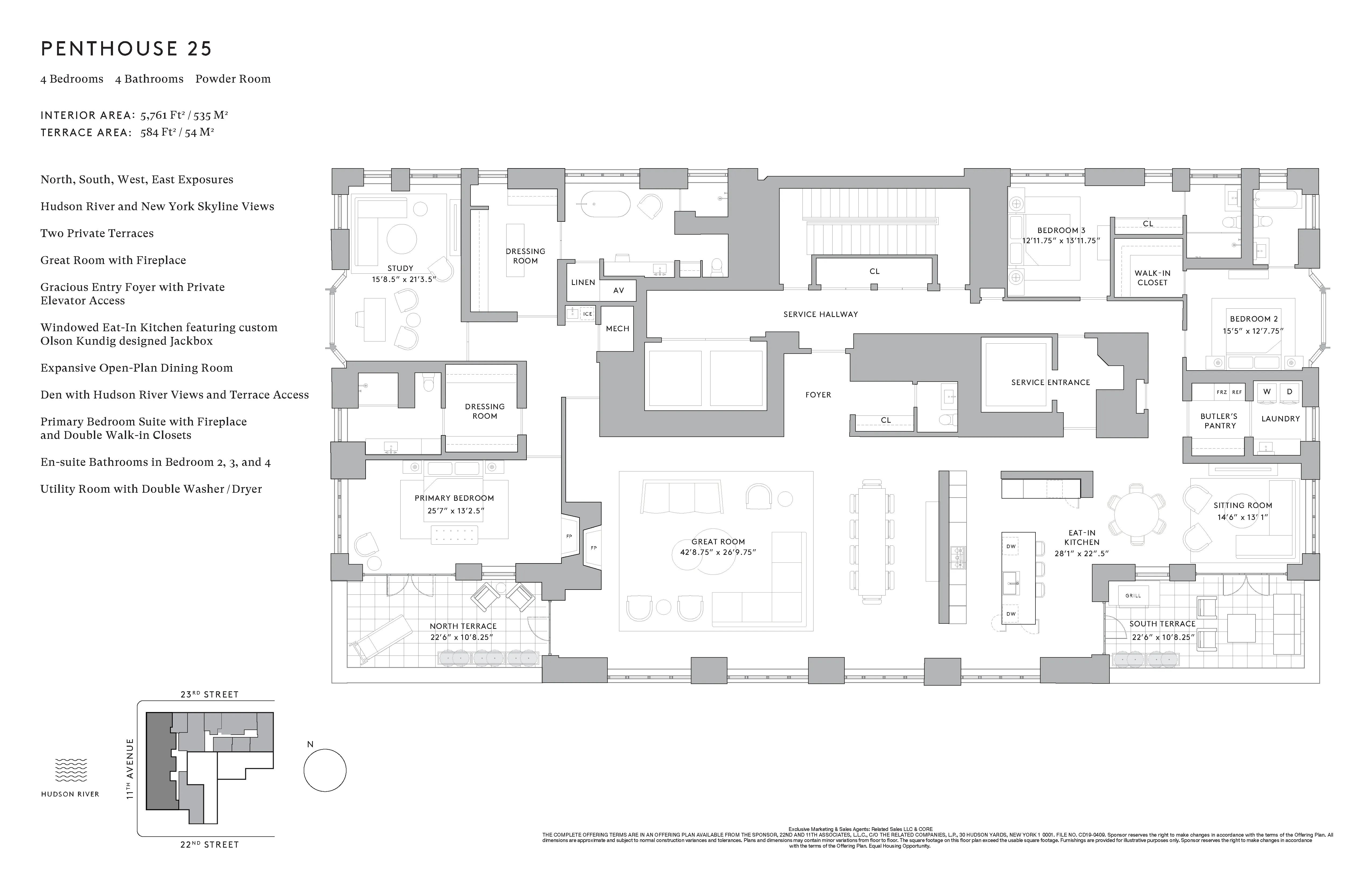
5,761 ft²
$6,856 per ft²
7 rooms
4 beds
4.5 baths
Condo
- West Chelsea
Sponsor unit
Sponsor unitA unit being sold for the first time. It’s typically owned by the building. For condos, this is often the developer. For co-ops, this is often the building’s original owner before it went co-op.
reported sale
Sold on 6/17/2025
Not yet verified by closing records
Seller's agents
This home has been saved by 208 users.
Listing by CORE, Limited Liability Broker
Common charges
$10,753/mo
Estimated payment
$225,402/mo
Legal disclaimerAll calculations are estimates provided by StreetEasy for informational purposes only. Actual amounts or financing terms may vary. Please contact your mortgage provider for specifics.Taxes
$13,625/mo
Tax abatement
No info
About
Seller’s agent
description
Private In-Person & Virtual Appointments Available.
Inspired by West Chelsea’s historical architecture and rich heritage, The Cortland, located at 555 W 22nd Street, is striking a new presence on the Hudson waterfront. Hand-crafted and American-made, The Cortland represents a unique collaboration between two architectural icons, Robert A.M. Stern Architects and Olson Kundig.
Policies
Pets allowed
Cats and dogs allowed
Smoke-free
Home features
Central air
Dishwasher
Fireplace
Hardwood floors
Private outdoor space
Terrace
View
City, Water
Washer/dryer
Building amenities
Services and facilities
Bike room
Concierge
Doorman
Full-time
Elevator
Laundry in building
Live-in super
Package room
Parking
Assigned, Garage, Valet
Storage space
Cold storage, Locker/cage
Valet service
Wheelchair access
Wellness and recreation
Children's playroom
Gym
Media room
Swimming pool
Shared outdoor space
Roof deck
About the building
The Cortland
555 West 22nd Street, New York, NY 10011
144 units
25 stories
2022 built
For sale
11 available units for saleFor rent
1 available units for rentDocuments and permits
View documents and permitsProperty history
- Price Change: No changes
- Days on market: 405 daysThis is the number of days the listing has been on StreetEasy.
| Date | Price | Event |
|---|---|---|
6/17/2025 | $39,500,000 | Sold by CORE |
5/8/2024 | $39,500,000 | Listed by CORE |
Past listing photos
Sign in to take a closer look at how this home compares to similar homes.
Explore West Chelsea
Transit
| Location | Distance |
|---|---|
CEat 23rd St | 0.47 miles |
7at 34 St Hudson Yards | 0.55 miles |
ACELat 14th St | 0.55 miles |
ACELat 8th Av | 0.62 miles |
1at 23rd St | 0.64 miles |






































































































































































































































































