View this home virtually
$4,000
For Rent
Base rent only. For total monthly price and additional fees, see .
Delisted 1/11/2021
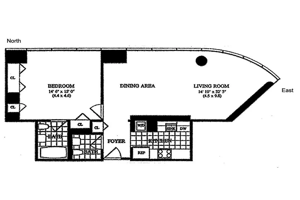
900 ft²
$53 per ft²
4 rooms
1 bed
1.5 baths
Condo
- Sutton Place
Under NYC law, you can't be charged a broker fee if you didn't hire a broker.
Listed By
This home has been saved by 122 users.
Listing by Sotheby's International Realty, Corporate Broker, 650 Madison Avenue, New York, NY 10022
Unavailable
Delisted on 1/11/2021
Days on market
199 days
Last price change
↓ $300 (-7.0%) on 10/19/20
About
Mint 900 SF 1 bedroom, 1.5 bath home with 3 beautiful exposures to the North, East and West with open city views. The apartment features floor to ceiling windows, Brazilian Cherry herringbone floors, 9’5’ ceiling height. There is a washer/dryer in the unit. The kitchen has stainless steel appliances, granite countertops and the bathrooms are marble.
The Mondrian is a premier condominium.
Policies
Pets allowed
Cats and dogs allowed
Home features
Central air
Dishwasher
Hardwood floors
Private outdoor space
Roof deck
View
Skyline
Washer/dryer
Building amenities
Services and facilities
Concierge
Doorman
Full-time
Elevator
Laundry in building
Live-in super
Wellness and recreation
Gym
Shared outdoor space
No info on shared outdoor space
About the building
The Mondrian
250 East 54th Street, New York, NY 10022
174 units
43 stories
1990 built
Property history
Prices shown are base rent only. For total monthly price and additional fees, see .
| Date | Base rent | Event |
|---|---|---|
1/11/2021 | $4,000 | Delisted by Sotheby's International Realty |
10/19/2020 | $4,000 | Price decreased by 7% |
9/24/2020 | $4,300 | Price decreased by 4% |
7/21/2020 | $4,500 | Price decreased by 2% |
6/26/2020 | $4,600 | Listed by Sotheby's International Realty |
Past listing photos
Sign in to take a closer look at how this home compares to similar homes.
Explore Sutton Place
Transit
| Location | Distance |
|---|---|
EM6at Lexington Av–53rd St | 0.1 miles |
EM6at 51st St | 0.23 miles |
NRW456at Lexington Av/59th St | 0.33 miles |
EMat 5th Av–53rd St | 0.39 miles |
LIRRat Grand Central | 0.46 miles |
Similar homes
Prices shown are base rent only and don't include any fees. Visit each listing to see a complete cost breakdown.
Similar Homes looks at ad spend and other factors like location, price, and number of beds and baths.

















































