$3,820
For Rent
Base rent only. For total monthly price and additional fees, see .
Rented 1/24/2024
505 ft²
$90 per ft²
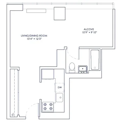
2 rooms
Studio
1 bath
Rental unit
- Hudson Yards
Under NYC law, you can't be charged a broker fee if you didn't hire a broker.
Listed By
Brookfield (Funnel)
This home has been saved by 37 users.
Listing by Brookfield (Funnel) | Brokerage Listing ID: 3582405
Unavailable
Rented on 1/24/2024
Days on market
42 days
Last price change
↓ $10 (-0.3%) on 1/24/24
About
RARELY AVAILABLE Alcove Studio with INCREDIBLE South-Facing Downtown Views!!! Available for December 8th move in.
Modern design meets elegant functionality in the Greenwich Collection! With brand-new flooring throughout, this unit is sure to impress. Stunning quarts countertops and stainless-steel GE Profile appliances define the spacious kitchens, which over ample storage, sleek under-counter lighting, and plenty of counter space for preparing gourmet meals or entertaining guests.
Policies
Guarantors accepted
Pets allowed
Home features
Dishwasher
Building amenities
Services and facilities
Bike room
Concierge
Doorman
Elevator
Live-in super
Package room
Storage space
Valet service
Wellness and recreation
Gym
Shared outdoor space
Deck
Roof deck
About the building
The Olivia
315 West 33rd Street, New York, NY 10001
333 units
36 stories
2000 built
Property history
Prices shown are base rent only. For total monthly price and additional fees, see .
| Date | Base rent | Event |
|---|---|---|
8/15/2025 | $4,342 | |
8/15/2025 | $4,342 | Price increased by 0% |
8/14/2025 | $4,332 | Price increased by 1% |
8/13/2025 | $4,295 | Price increased by 0% |
8/12/2025 | $4,285 | Price increased by 0% |
Past listing photos
Sign in to take a closer look at how this home compares to similar homes.
Explore Hudson Yards
Transit
| Location | Distance |
|---|---|
123ACEat 34th St–Penn Station | under 500 feet |
LIRRat Penn Station | 0.13 miles |
ACENQRWS1237at Times Square–42nd St | 0.32 miles |
1at 28th St | 0.34 miles |
BDFMNQRWat 34th St–Herald Sq | 0.35 miles |
Similar homes
Prices shown are base rent only and don't include any fees. Visit each listing to see a complete cost breakdown.
Similar Homes looks at ad spend and other factors like location, price, and number of beds and baths.



















































































































































































































































