- ft²
1 room
Studio
1 bath
Co-op
- Flatiron
Resale
recorded sale
Sold on 5/21/2025
Verified by closing records
Last listed for $495,000
Seller's agents
This home has been saved by 67 users.
Listing by Compass, Corporate Broker, 110 5th Avenue, New York, NY 10011
Maintenance fees
$795/mo
Estimated payment
$3,172/mo
Legal disclaimerAll calculations are estimates provided by StreetEasy for informational purposes only. Actual amounts or financing terms may vary. Please contact your mortgage provider for specifics.Taxes
Included in maintenance fees
Tax abatement
No info
About
Seller’s agent
Buyer’s agent
description
Email me for a link to the video walkthrough!
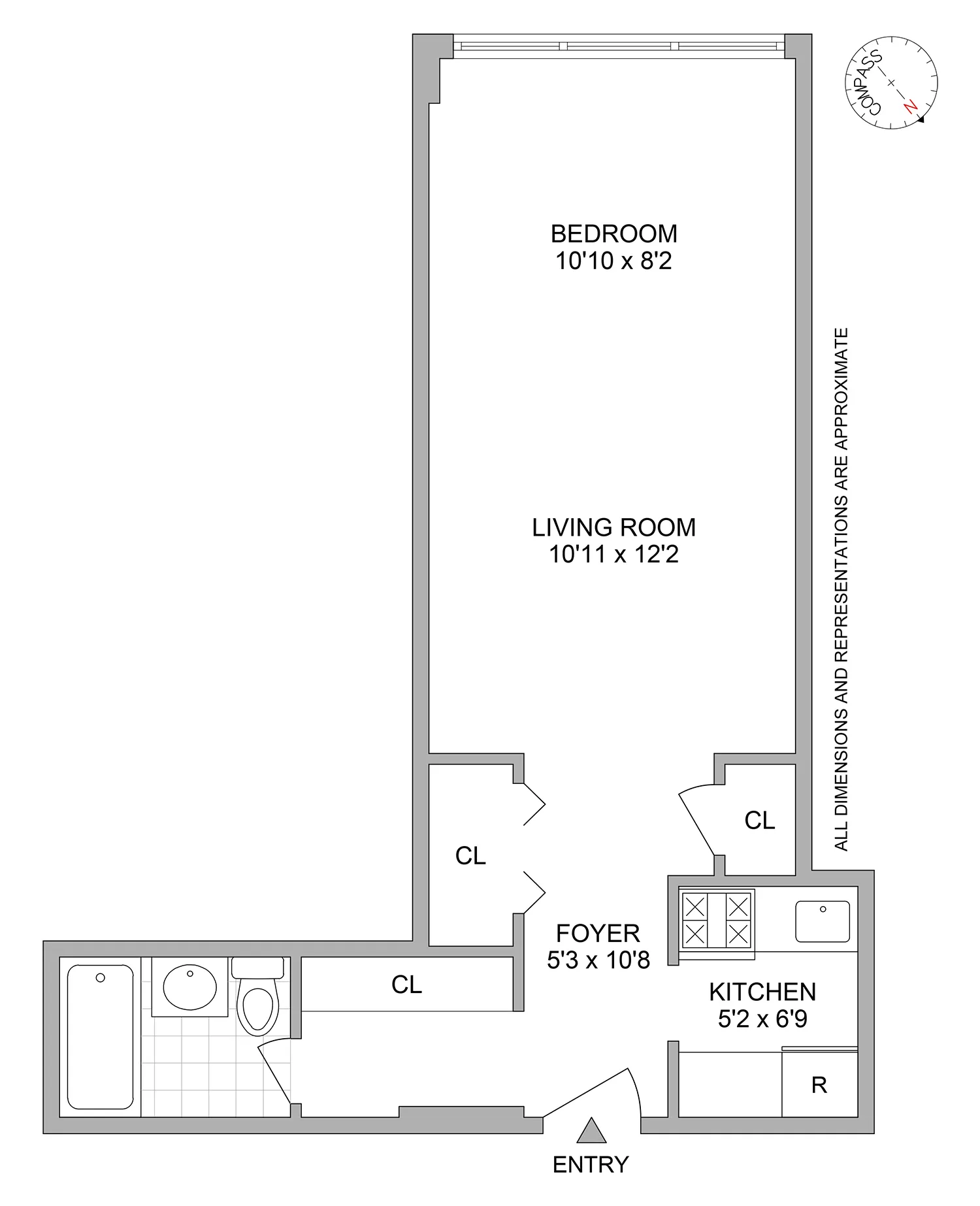
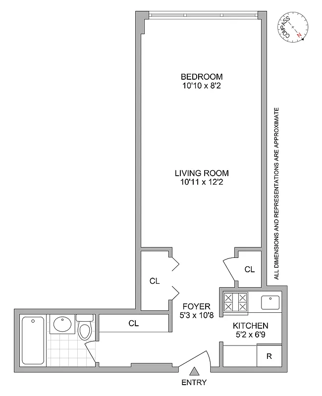
Epic studio with excellent layout and space for a living room, home office, large bedroom, and TONS of storage and closet space (see floor plan). Kitchen has a stove and microwave. Contemporary bathroom with modern sink and vanity, with a tub and glass shower doors. Apartment is super quiet, facing the interior courtyard, with parquet flooring throughout, and central HVAC system that provides heat and air-conditioning.
Policies
Co-purchase allowed
Gifts allowed
Guarantors accepted
Parents buying allowed
Pets allowed
Cats and dogs allowed
Pied-a-terre allowed
Home features
Central air
Dishwasher
Hardwood floors
View
City
Building amenities
Services and facilities
Doorman
Full-time
Elevator
Laundry in building
Live-in super
Package room
Parking
Garage
Storage space
Locker/cage
Wellness and recreation
No info on wellness and recreation
Shared outdoor space
No info on shared outdoor space
About the building
The Parker Gramercy
10 West 15th Street, New York, NY 10011
430 units
21 stories
1964 built
For sale
9 available units for saleFor rent
1 available units for rentDocuments and permits
View documents and permitsProperty history
- Price Change: No changes
- Days on market: 44 daysThis is the number of days the listing has been on StreetEasy.
| Date | Price | Event |
|---|---|---|
5/21/2025 | $487,500 | Sold by Compass |
3/1/2025 | $495,000 | In contract |
1/16/2025 | $495,000 | Listed by Compass |
2/18/2023 | $489,000 | |
11/19/2022 | $489,000 |
Past listing photos
Sign in to take a closer look at how this home compares to similar homes.
Explore Flatiron
Transit
| Location | Distance |
|---|---|
FLM123at 14th St | 0.12 miles |
FLM123at 6th Av | 0.13 miles |
PATHat 14th Street Station | 0.14 miles |
LNQRW456at 14th St–Union Square | 0.19 miles |
PATHat 9th Street Station | 0.3 miles |
About Flatiron
Rental prices shown are base rent before any fees. Visit listings for cost and fees breakdown.
SalesMedian asking price
Studio
$725K
RentalsMedian asking base rent
Studio
$4,000
Flatiron is a historic New York City neighborhood that has seen its fair share of change over the years. In the early 1900s, it was a major commercial and residential center. By the middle of the century, things stagnated as businesses and residents left in search of more space and lower rents. In recent years, stores, upscale restaurants, and new developments moved back in, and the neighborhood is seeing a significant resurgence. Fifth Avenue now bustles with some of the best shopping in the city, and restaurants run the gamut from Michelin-rated to Yelp-reviewed food trucks.
Flatiron is busiest at midday and cocktail hour and tends to quiet down a bit at night, although the lights never truly turn off. Proximity to Union Square and multiple subway lines make it an equally easy trip to Midtown or Downtown.
















































































































