$8,500
For Rent
Base rent only. For total monthly price and additional fees, see .
Rented 10/26/2023
- ft²
4 rooms
1 bed
2 baths
Condo
- West Village
Under NYC law, you can't be charged a broker fee if you didn't hire a broker.
Listed By
This home has been saved by 45 users.
Listing by Douglas Elliman, Limited Liability Broker, 575 Madison Avenue, New York, NY 10022 | Brokerage Listing ID: 22708595
Unavailable
Rented on 10/26/2023
Days on market
9 days
Last price change
No changes
About
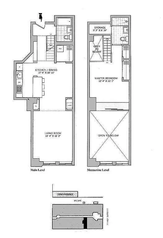
Experience the serene beauty of 421 Hudson Street in the enchanting West Village with Unit 205, nestled within the sought-after Printing House. Upon entering this harmonious abode, you'll be welcomed by 900 square feet of meticulously designed living space, bathed in natural light streaming in from the South and East-facing exposures.
Four distinct rooms offer versatility within this pre-war gem.
Policies
Pets allowed
Cats and dogs allowed
Home features
No info on home features
Building amenities
Services and facilities
Concierge
Doorman
Full-time
Elevator
Laundry in building
Live-in super
Wellness and recreation
No info on wellness and recreation
Shared outdoor space
No info on shared outdoor space
About the building
The Printing House
421 Hudson Street, New York, NY 10014
155 units
- stories
1920 built
Property history
Prices shown are base rent only. For total monthly price and additional fees, see .
| Date | Base rent | Event |
|---|---|---|
10/26/2023 | $8,500 | Rented by Douglas Elliman |
10/11/2023 | $8,500 | In contract |
10/2/2023 | $8,500 | Listed by Douglas Elliman |
7/29/2021 | $6,750 | |
7/16/2021 | $6,750 |
Past listing photos
Sign in to take a closer look at how this home compares to similar homes.
Explore West Village
Transit
| Location | Distance |
|---|---|
1at Houston St | 0.13 miles |
PATHat Christopher Street Station | 0.22 miles |
CEat Spring St | 0.31 miles |
ABCDEFMat West 4th St | 0.31 miles |
1at Christopher StâSheridan Sq | 0.33 miles |
About West Village
Rental prices shown are base rent before any fees. Visit listings for cost and fees breakdown.
SalesMedian asking price
1 bed
$1.33M
RentalsMedian asking base rent
1 bed
$5,495
Picture a romantic comedy set in New York City: The heroine invariably lives in a cozy walk-up on a cobblestone street in a neighborhood with cute boutiques and trendy cafes on every corner. This movie is set in the West Village. In reality, the West Village is just as picturesque: The neighborhood is tucked between Greenwich Village and the Hudson River and is one of the quietest and most sophisticated pockets of Downtown Manhattan. Primarily residential, with a distinct lack of office buildings, the leafy, off-the-grid streets are peaceful during the day but get livelier at night. That's when well-heeled residents, fashionistas, and literati can all be found mingling over oysters at the area's many low-lit cocktail bars.
Learn more about West VillageSimilar homes
Prices shown are base rent only and don't include any fees. Visit each listing to see a complete cost breakdown.
Similar Homes looks at ad spend and other factors like location, price, and number of beds and baths.


























































































































