$5,300
For Rent
Base rent only. For total monthly price and additional fees, see .
Rented 4/17/2024
855 ft²
$74 per ft²
4 rooms
1 bed
1 bath
Condo
- Lincoln Square
Under NYC law, you can't be charged a broker fee if you didn't hire a broker.
Listed By
This home has been saved by 84 users.
Listing by Nest Seekers International, Limited Liability Broker, 100 Riverside Boulevard, New York, NY 10069
Unavailable
Rented on 4/17/2024
Days on market
46 days
Last price change
No changes
About
*Available starting May 1, 2024
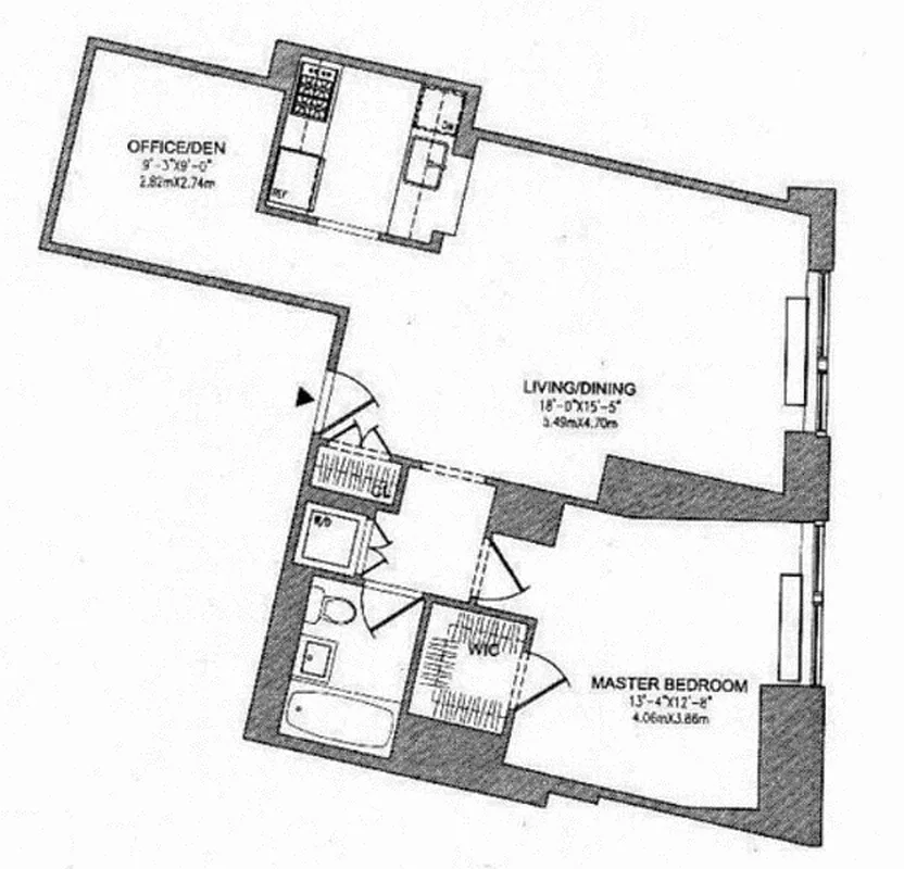
Rare opportunity to Rent this 1 Bedroom + HOME OFFICE / DEN at the Rushmore Condominium on Riverside Park!
This unit features true hardwood floors throughout, a pass-through kitchen, beautiful granite countertops, top notch appliances, generous closet space including a walk In closet, huge HOME OFFICE/DEN space, and an in-unit washer/dryer.
Policies
Pets allowed
Cats and dogs allowed
Home features
Central air
Dishwasher
Hardwood floors
Washer/dryer
Building amenities
Services and facilities
Bike room
Concierge
Doorman
Full-time
Elevator
Laundry in building
Live-in super
Package room
Parking
Wellness and recreation
Gym
Swimming pool
Shared outdoor space
Roof deck
About the building
The Rushmore
80 Riverside Boulevard, New York, NY 10069
267 units
43 stories
2006 built
Property history
Prices shown are base rent only. For total monthly price and additional fees, see .
| Date | Base rent | Event |
|---|---|---|
4/17/2024 | $5,300 | Rented by Nest Seekers International |
3/17/2024 | $5,300 | In contract |
1/31/2024 | $5,300 | Listed by Nest Seekers International |
1/4/2024 | $4,950 | |
10/5/2023 | $4,950 |
Past listing photos
Sign in to take a closer look at how this home compares to similar homes.
Explore Lincoln Square
Transit
| Location | Distance |
|---|---|
1at 66th St–Lincoln Center | 0.42 miles |
123at 72nd St | 0.5 miles |
ABCD1at 59th St–Columbus Circle | 0.57 miles |
BCat 72nd St | 0.69 miles |
1at 79th St | 0.8 miles |
About Lincoln Square
Rental prices shown are base rent before any fees. Visit listings for cost and fees breakdown.
SalesMedian asking price
1 bed
$980K
RentalsMedian asking base rent
1 bed
$5,377
Named after and defined by the Lincoln Center for the Performing Arts, Lincoln Square is home to the New York Philharmonic, the New York City Ballet and the Metropolitan Opera, among many other cultural institutions. The neighborhood blends the prewar architecture and and style of the Upper West Side with modern, tall residential buildings. Great subway access at Columbus Circle and proximity to Midtown make this neighborhood popular with those looking to be in the center of it all.
Learn more about Lincoln SquareSimilar homes
Prices shown are base rent only and don't include any fees. Visit each listing to see a complete cost breakdown.
Similar Homes looks at ad spend and other factors like location, price, and number of beds and baths.







































































































































































