$6,900
For Rent
Base rent only. For total monthly price and additional fees, see .
Rented 9/4/2025
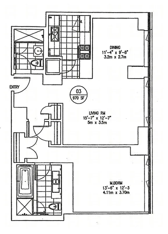
970 ft²
$85 per ft²
3 rooms
1 bed
2 baths
Condo
- Turtle Bay
Under NYC law, you can't be charged a broker fee if you didn't hire a broker.
Listed By
This home has been saved by 10 users.
Listing by Brown Harris Stevens, Real Estate Principal Office, 1934 Broadway, New York, NY 10023
Unavailable
Rented on 9/4/2025
Days on market
9 days
Last price change
No changes
About
LUXURY LIVING AT THE VENETO
Amazing city views and eastern light frame this 970 SQUARE FOOT, one-bedroom, two-bathroom home at The Veneto. The apartment features a large dining alcove perfectly suited for a home office, a wall of oversized windows, nine foot ceilings, and Brazilian cherry wood flooring.
Policies
Pets allowed
Cats and dogs allowed
Home features
Central air
Dishwasher
Hardwood floors
View
City
Washer/dryer
Building amenities
Services and facilities
Bike room
Concierge
Doorman
Full-time
Elevator
Live-in super
Parking
Wellness and recreation
Children's playroom
Gym
Shared outdoor space
No info on shared outdoor space
About the building
The Veneto
250 East 53rd Street, New York, NY 10022
135 units
32 stories
2006 built
Property history
Prices shown are base rent only. For total monthly price and additional fees, see .
| Date | Base rent | Event |
|---|---|---|
9/4/2025 | $6,900 | Rented by Brown Harris Stevens |
8/6/2025 | $6,900 | In contract |
7/28/2025 | $6,900 | Listed by Brown Harris Stevens |
7/12/2017 | $5,450 | |
9/24/2015 | $5,450 |
Past listing photos
Sign in to take a closer look at how this home compares to similar homes.
Explore Turtle Bay
Transit
| Location | Distance |
|---|---|
EM6at Lexington Av–53rd St | under 500 feet |
EM6at 51st St | 0.21 miles |
NRW456at Lexington Av/59th St | 0.36 miles |
EMat 5th Av–53rd St | 0.38 miles |
LIRRat Grand Central | 0.43 miles |
Similar homes
Prices shown are base rent only and don't include any fees. Visit each listing to see a complete cost breakdown.
Similar Homes looks at ad spend and other factors like location, price, and number of beds and baths.



























































































