$24,995
For Rent
Base rent only. For total monthly price and additional fees, see .
4,600 ft²
$65 per ft²
9 rooms
5 beds
3.5 baths
Co-op
- Upper West Side
Under NYC law, you can't be charged a broker fee if you didn't hire a broker.
Listed By
This home has been saved by 73 users.
Listing by Arwell Realty, Limited Liability Broker, 475 B Chestnut Street, Cedarhurst, NY 11516
Available
Available now
Days on market
58 days
Last price change
No changes
About
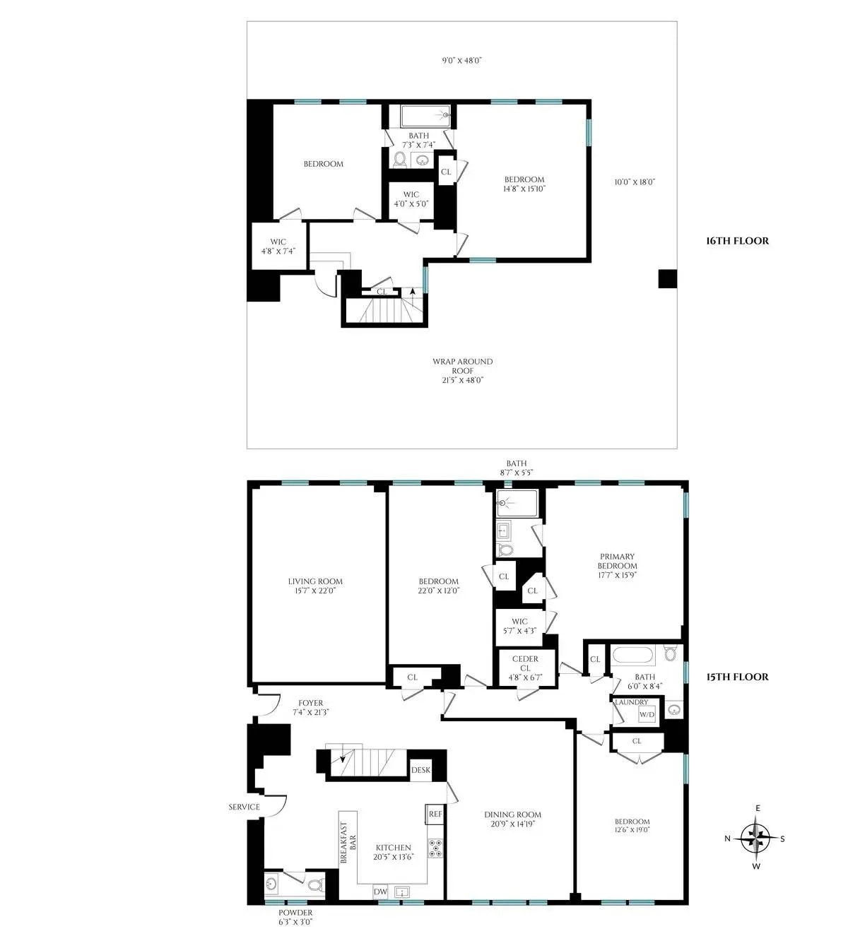
Magnificent penthouse 5 bedroom duplex with huge outdoor roof deck.
Sponsor listing - No board approval or Coop time limits on Rental!
As you step inside a grand center foyer welcomes you with new herringbone white oak floors and 10 foot ceilings that extend throughout the entire apartment setting the stage for what lies beyond. Every room boasts an impressive sense of spaciousness grandeur and abundance of natural light.
Policies
Pets allowed
Cats and dogs allowed
Home features
Central air
Dishwasher
Hardwood floors
Private outdoor space
Roof deck
View
City, Skyline
Washer/dryer
Building amenities
Services and facilities
Bike room
Doorman
Full-time
Elevator
Laundry in building
Live-in super
Wellness and recreation
Gym
Shared outdoor space
No info on shared outdoor space
About the building
The Viewest
277 West End Avenue, New York, NY 10023
80 units
15 stories
1926 built
Property history
Prices shown are base rent only. For total monthly price and additional fees, see .
| Date | Base rent | Event |
|---|---|---|
11/21/2025 | $24,995 | Listed by Arwell Realty |
3/2/2024 | $23,995 | |
11/13/2023 | $23,995 | Price decreased by 4% |
9/21/2023 | $24,995 |
Past listing photos
Sign in to take a closer look at how this home compares to similar homes.
Explore Upper West Side
Transit
| Location | Distance |
|---|---|
123at 72nd St | 0.16 miles |
1at 79th St | 0.32 miles |
1at 66th St–Lincoln Center | 0.47 miles |
BCat 72nd St | 0.52 miles |
BCat 81st St–Museum of Natural History | 0.59 miles |
About Upper West Side
Rental prices shown are base rent before any fees. Visit listings for cost and fees breakdown.
SalesMedian asking price
5 beds
$9M
RentalsMedian asking base rent
5 beds
$50,000
Sandwiched between two beautiful parks, the Upper West Side is one of the greenest spots in Manhattan. For that reason, it is a perennial favorite. The Upper West Side is relaxed, but never dull. There are plenty of low-key bars and restaurants to frequent along Amsterdam Avenue, and Broadway is an always-bustling commercial center. The wide, tree-lined streets still boast many mom-and-pop stores. Less posh than the Upper East Side, it is more easily accessible by public transportation, and real estate prices are just as, if not more, expensive.
Learn more about Upper West SideSimilar homes
Prices shown are base rent only and don't include any fees. Visit each listing to see a complete cost breakdown.
Similar Homes looks at ad spend and other factors like location, price, and number of beds and baths.































































































































































































































































