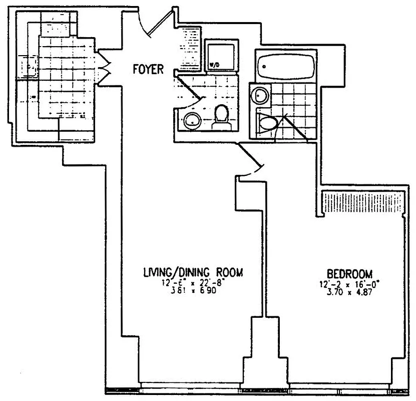
877 ft²
$1,311 per ft²
3 rooms
1 bed
1.5 baths
Condo
- Turtle Bay
Resale
recorded sale
Sold on 1/13/2025
Verified by closing records
Last listed for $1,250,000
Seller's agents
This home has been saved by 19 users.
Listing by Keller Williams NYC, Limited Liability Broker, 360 Madison Avenue, New York, NY 10017
Common charges
$1,460/mo
Estimated payment
$9,062/mo
Legal disclaimerAll calculations are estimates provided by StreetEasy for informational purposes only. Actual amounts or financing terms may vary. Please contact your mortgage provider for specifics.Taxes
$1,066/mo
Tax abatement
No info
About
Seller’s agent
Buyer’s agent
description
New Offering! This lovely one bedroom, one and one-half bathroom apartment with spectacular direct views of the East River and the United Nations Park and Gardens is now available for sale. Well maintained and updated, this home features 10-foot ceilings throughout with dramatic floor-to-ceiling windows which beautifully illuminate the abundant natural eastern sunlight.
Policies
Pets allowed
Cats and dogs allowed
Home features
Hardwood floors
View
Water
Washer/dryer
Building amenities
Services and facilities
Bike room
Concierge
Doorman
Full-time
Elevator
Laundry in building
Live-in super
Parking
Valet
Storage space
Cold storage
Wellness and recreation
Gym
Swimming pool
Shared outdoor space
No info on shared outdoor space
About the building
Trump World Tower
845 United Nations Plaza, New York, NY 10017
376 units
90 stories
2001 built
For sale
18 available units for saleFor rent
7 available units for rentDocuments and permits
View documents and permitsProperty history
- Price Change: ↓ $100,000 (-7.4%) on 9/3/24
- Days on market: 84 daysThis is the number of days the listing has been on StreetEasy.
| Date | Price | Event |
|---|---|---|
1/13/2025 | $1,150,000 | Sold by Keller Williams NYC |
10/28/2024 | $1,250,000 | In contract |
9/3/2024 | $1,250,000 | Price decreased by 7% |
8/5/2024 | $1,350,000 | Listed by Keller Williams NYC |
8/20/2013 | $1,250,000 |
Past listing photos
Sign in to take a closer look at how this home compares to similar homes.
Explore Turtle Bay
Transit
| Location | Distance |
|---|---|
EM6at Lexington Av–53rd St | 0.34 miles |
EM6at 51st St | 0.36 miles |
S4567at Grand Central–42nd St | 0.4 miles |
LIRRat Grand Central | 0.44 miles |
EMat 5th Av–53rd St | 0.58 miles |

















































































































