$5,900
For Rent
Base rent only. For total monthly price and additional fees, see .
Rented 3/14/2025
895 ft²
$79 per ft²
35 rooms
1 bed
1.5 baths
Condo
- Turtle Bay
Under NYC law, you can't be charged a broker fee if you didn't hire a broker.
Listed By
This home has been saved by 28 users.
Listing by Corcoran, Limited Liability Broker, 590 Madison Avenue, New York, NY 10022
Unavailable
Rented on 3/14/2025
Days on market
43 days
Last price change
↓ $100 (-1.7%) on 2/13/25
About
Accepted offer, application in progress.
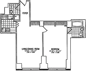
Welcome to 845 United Nations Plaza, Apt. 7B - Available as of April 1, 2025.
7B is an east facing apartment overlooking the United Nations Gardens, and the East River along First Avenue in Midtown East Manhattan. The home offers 895 square featuring one bedroom, one and a half marble bathrooms with a walk-in glass enclosed shower, a full equipped kitchen with...
Policies
Pets allowed
Cats and dogs allowed
Home features
Central air
Dishwasher
Hardwood floors
View
City, Garden, Skyline, Water
Washer/dryer
Building amenities
Services and facilities
Bike room
Concierge
Doorman
Full-time
Elevator
Laundry in building
Live-in super
Parking
Valet
Storage space
Cold storage
Wheelchair access
Wellness and recreation
Children's playroom
Gym
Media room
Swimming pool
Shared outdoor space
No info on shared outdoor space
About the building
Trump World Tower
845 United Nations Plaza, New York, NY 10017
376 units
90 stories
2001 built
Property history
Prices shown are base rent only. For total monthly price and additional fees, see .
| Date | Base rent | Event |
|---|---|---|
3/14/2025 | $5,900 | Rented by Corcoran |
3/11/2025 | $5,900 | In contract |
2/13/2025 | $5,900 | Price decreased by 2% |
1/27/2025 | $6,000 | Listed by Corcoran |
8/10/2021 | $4,300 |
Past listing photos
Sign in to take a closer look at how this home compares to similar homes.
Explore Turtle Bay
Transit
| Location | Distance |
|---|---|
EM6at Lexington Av–53rd St | 0.34 miles |
EM6at 51st St | 0.36 miles |
S4567at Grand Central–42nd St | 0.4 miles |
LIRRat Grand Central | 0.44 miles |
EMat 5th Av–53rd St | 0.58 miles |
Similar homes
Prices shown are base rent only and don't include any fees. Visit each listing to see a complete cost breakdown.
Similar Homes looks at ad spend and other factors like location, price, and number of beds and baths.















































































































































