$6,500
For Rent
Base rent only. For total monthly price and additional fees, see .
Rented 11/7/2025
1,433 ft²
$54 per ft²
4 rooms
2 beds
2 baths
Condop
- Turtle Bay
Under NYC law, you can't be charged a broker fee if you didn't hire a broker.
Listed By
This home has been saved by 22 users.
Listing by Compass, Corporate Broker, 110 5th Avenue, New York, NY 10011
Unavailable
Rented on 11/7/2025
Days on market
10 days
Last price change
No changes
About
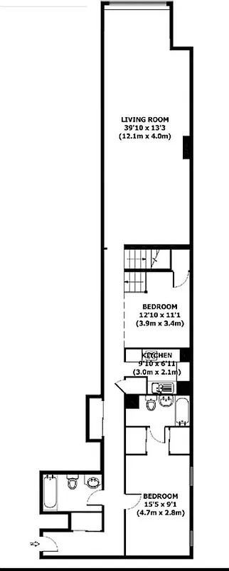
Soho loft living in Midtown! This grand two bedroom, two full bathroom loft is approximately 1433 sq. ft. and has 12.5 foot ceilings. The apartment is 87 feet long and has beautiful wood floors throughout. The apartment has luxurious upgrades such as a kitchen with stainless steel appliances and marble bathrooms.
Policies
Pets allowed
Cats and dogs allowed
Home features
Central air
Dishwasher
Hardwood floors
View
City, Water
Building amenities
Services and facilities
Bike room
Doorman
Full-time
Elevator
Laundry in building
Live-in super
Wellness and recreation
No info on wellness and recreation
Shared outdoor space
Roof deck
About the building
Turtle Bay Towers
310 East 46th Street, New York, NY 10017
338 units
27 stories
1929 built
Property history
Prices shown are base rent only. For total monthly price and additional fees, see .
| Date | Base rent | Event |
|---|---|---|
11/7/2025 | $6,500 | Rented by Compass |
10/23/2025 | $6,500 | In contract |
10/13/2025 | $6,500 | Listed by Compass |
10/31/2024 | $6,000 | |
10/25/2024 | $6,000 |
Past listing photos
Sign in to take a closer look at how this home compares to similar homes.
Explore Turtle Bay
Transit
| Location | Distance |
|---|---|
S4567at Grand Central–42nd St | 0.28 miles |
EM6at 51st St | 0.36 miles |
LIRRat Grand Central | 0.37 miles |
EM6at Lexington Av–53rd St | 0.39 miles |
Ferryat E 34th Street Ferry Landing | 0.53 miles |
Similar homes
Prices shown are base rent only and don't include any fees. Visit each listing to see a complete cost breakdown.
Similar Homes looks at ad spend and other factors like location, price, and number of beds and baths.



























































































































































































