View this home virtually
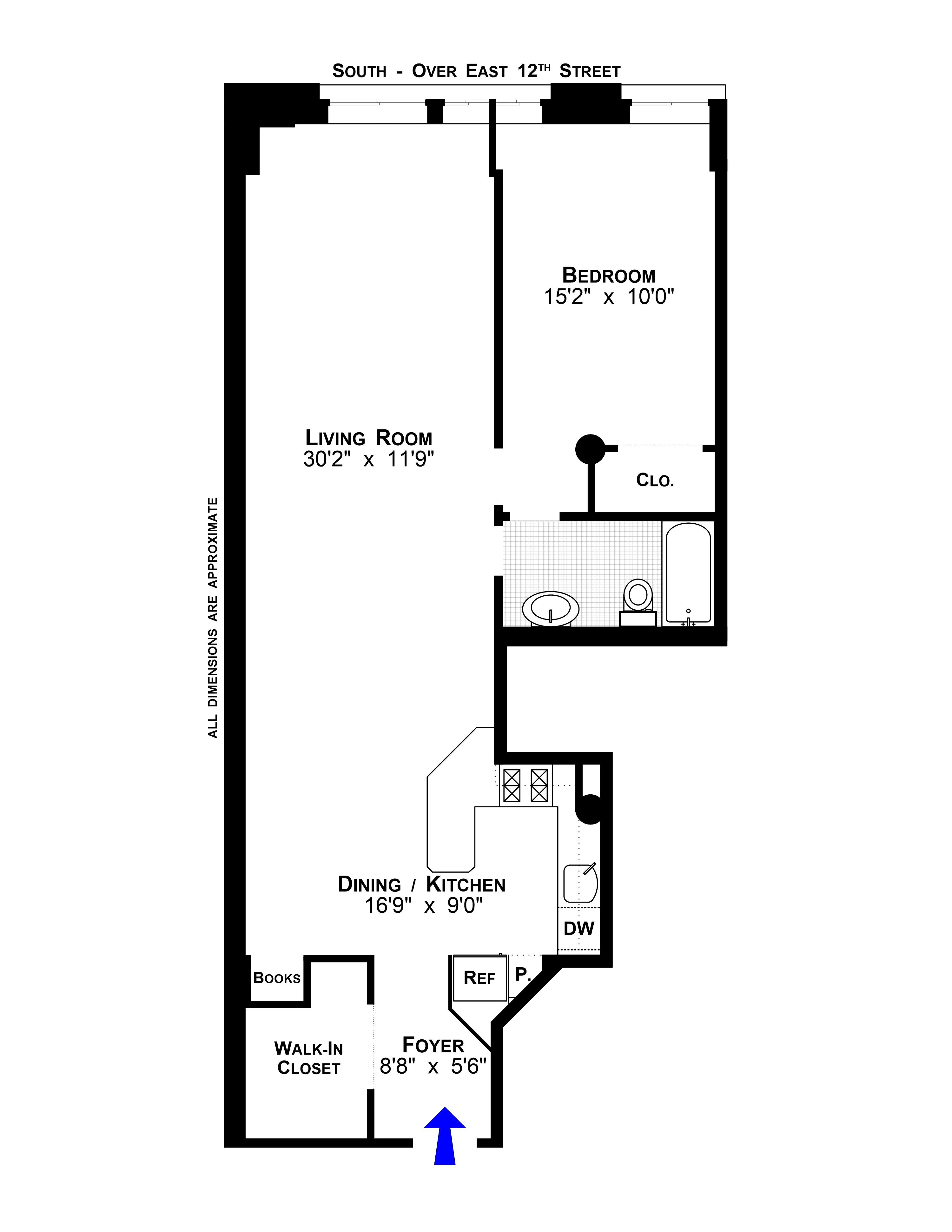
965 ft²
$1,373 per ft²
1 room
1 bed
1 bath
Co-op
- Greenwich Village
Resale
recorded sale
Sold on 2/13/2025
Verified by closing records
Last listed for $1,295,000
Seller's agent
This home has been saved by 91 users.
Listing by The Agency, Real Estate Principal Office, 88 University Place, New York, NY 10003
Maintenance fees
$2,273/mo
Estimated payment
$8,964/mo
Legal disclaimerAll calculations are estimates provided by StreetEasy for informational purposes only. Actual amounts or financing terms may vary. Please contact your mortgage provider for specifics.Taxes
Included in maintenance fees
Tax abatement
No info
About
Seller’s agent
description
Light-filled, south facing large one bedroom loft with fabulous pre-war details for which this former printing factory is well known: exposed brick walls, 11’ barrel-vaulted ceilings, floor to ceiling cast iron columns.
Stunning wide-plank African Sapele hardwood floors throughout, custom tilt and turn windows, an open chef’s kitchen and oversized bathroom which feature Millbrook and Robern custom cabinetry, Villroy & Boch, and Axor sinks and faucets, highlight this once upon industrial space.
Policies
Co-purchase allowed
Gifts allowed
Pets allowed
Cats only (no dogs)
Sublets allowed
Home features
Dishwasher
Hardwood floors
View
City
Building amenities
Services and facilities
Doorman
Full-time
Elevator
Laundry in building
Live-in super
Wellness and recreation
No info on wellness and recreation
Shared outdoor space
Roof deck
About the building
University Mews
39 East 12th Street, New York, NY 10003
95 units
8 stories
1900 built
For sale
2 available units for saleFor rent
0 available units for rentDocuments and permits
View documents and permitsProperty history
- Price Change: ↓ $100,000 (-7.2%) on 10/7/24
- Days on market: 74 daysThis is the number of days the listing has been on StreetEasy.
| Date | Price | Event |
|---|---|---|
2/13/2025 | $1,325,000 | Sold by The Agency |
11/19/2024 | $1,295,000 | In contract |
10/7/2024 | $1,295,000 | Price decreased by 7% |
9/6/2024 | $1,395,000 | Listed by The Agency |
5/23/2023 | $1,375,000 |
Past listing photos
Sign in to take a closer look at how this home compares to similar homes.
Explore Greenwich Village
Transit
| Location | Distance |
|---|---|
LNQRW456at 14th St–Union Square | under 500 feet |
RWat 8th St–NYU | 0.21 miles |
Lat 3rd Av | 0.25 miles |
6at Astor Place | 0.26 miles |
FLM123at 6th Av | 0.34 miles |
About Greenwich Village
Rental prices shown are base rent before any fees. Visit listings for cost and fees breakdown.
SalesMedian asking price
1 bed
$1.45M
RentalsMedian asking base rent
1 bed
$5,750
Greenwich Village perfectly combines a bit of the East Village's glorified grunge with a bit of the West Village's tony charm. The birthplace of the beatnik movement and home to NYU, the neighborhood offers something for all its eclectic residents. You'll find new restaurants, indie movie theaters and comedy clubs around the corner from quiet blocks full of big brownstones and well-kept window boxes. Whether it's a 24-hour falafel joint, a dark downstairs bar, or upscale furniture shops, the neighborhood appeals to anyone who relishes the culture, history and activity of the city.
Learn more about Greenwich Village









































































































