- ft²
5 rooms
3 beds
3.5 baths
Condo
- Midtown
Resale
Recorded sale
Sold on 12/8/2023
Verified by closing records
Last listed for $2,895,000
Seller's agents
This home has been saved by 86 users.
Listing by Douglas Elliman, Limited Liability Broker, 280 Metropolitan Avenue, Brooklyn, NY 11211 | Brokerage Listing ID: 22133742
Common charges
$2,956/mo
Estimated payment
$20,367/mo
Legal disclaimerAll calculations are estimates provided by StreetEasy for informational purposes only. Actual amounts or financing terms may vary. Please contact your mortgage provider for specifics.Taxes
$2,581/mo
Tax abatement
No info
About
Seller’s agent
Description
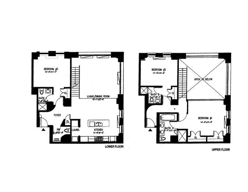
Introducing 8D at 100 West 58th Street, one of the most unique layouts in the iconic Windsor Park Condominium. At nearly 2,000 sqft, this corner 3 bedroom, 3.5 bathroom duplex has 18 foot ceilings and spectacular views of Central Park. On the eighth floor there’s a stylish powder room, dramatic living room encased in double height windows, and an open chefs kitchen overlooking the park, featuring top of the line stainless appliances, including a wine cooler and dishwasher.
Policies
Pets allowed
Cats and dogs allowed
Home features
Central air
Dishwasher
Hardwood floors
View
City, Park
Washer/dryer
Building amenities
Services and facilities
Bike room
Concierge
Doorman
Full-time
Elevator
Live-in super
Storage space
Valet service
Wellness and recreation
Gym
Shared outdoor space
Roof deck
About the building
Windsor Park
100 West 58th Street, New York, NY 10019
103 units
17 stories
1926 built
For sale
7 available units for saleFor rent
3 available units for rentDocuments and permits
View documents and permitsProperty history
- Price change: ↓ $305,000 (-9.5%) on 6/16/23
- Days on market: 282 daysThis is the number of days the listing has been on StreetEasy.
| Date | Price | Event |
|---|---|---|
12/8/2023 | $2,500,000 | Sold by Douglas Elliman |
8/16/2023 | $2,895,000 | In contract |
6/16/2023 | $2,895,000 | Price decreased by 10% |
1/30/2023 | $3,200,000 | Price decreased by 13% |
11/7/2022 | $3,690,000 | Listed by Douglas Elliman |
Past listing photos
Sign in to take a closer look at how this home compares to similar homes.
Explore Midtown
Transit
| Location | Distance |
|---|---|
Fat 57th St | under 500 feet |
NRWat 57th St–7th Av | 0.14 miles |
NRat 59th St | 0.16 miles |
BDEat 7th Av | 0.27 miles |
ABCD1at 59th St–Columbus Circle | 0.31 miles |
About Midtown
Rental prices shown are base rent before any fees. Visit listings for cost and fees breakdown.
SalesMedian asking price
3 beds
$6.55M
RentalsMedian asking base rent
3 beds
$15,975
If you're looking for a neighborhood with tree-lined streets and quaint coffee shops, Midtown isn't it. The neighborhood is more of a center for business than a residential community, but it puts everything close at hand for those who dwell here. Skyscrapers rise above congested streets, tourists flock to Broadway shows and Times Square, and thousands of commuters pass through Grand Central Terminal, Pennsylvania Station, and the Port Authority Bus Terminal every day.
The real estate options in Midtown can be diverse; surprisingly affordable apartments can be found alongside some of the city's most expensive properties. The headquarters of many global corporations line Sixth Avenue, while Fifth Avenue is an upscale retail destination with stores from some of the world's best-known brands.





























































































































