$6,950
For Rent
Base rent only. For total monthly price and additional fees, see .
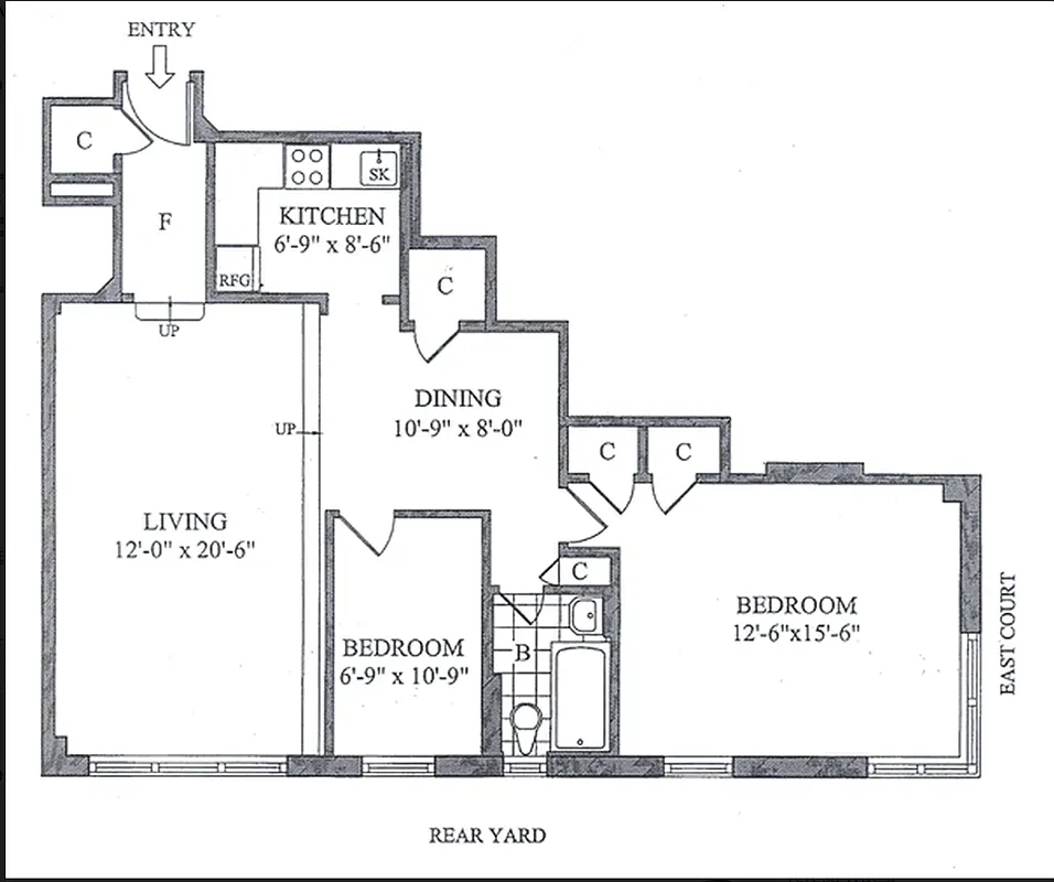
1,000 ft²
$83 per ft²
5 rooms
2 beds
1 bath
Rental unit
- Upper West Side
Under NYC law, you can't be charged a broker fee if you didn't hire a broker.
Listed By
This home has been saved by 1 user.
Open Houses
Fri, Mar 27 (11:45 AM–12:30 PM ET), by appt only
Sat, Mar 28 (11:45 AM–12:30 PM ET), by appt only
Listing by Douglas Elliman, Limited Liability Broker, 575 Madison Avenue, New York, NY 10022 | Brokerage Listing ID: 32080832802380
Available
5/1/2026
Days on market
Listed today
Last price change
No changes
About
Welcome To Apartment 6F At 10 W 74th!
Bathed in beautiful southern exposure, the home is filled with exceptional natural light throughout the day. High ceilings and herringbone hardwood floors create a sense of volume and timeless sophistication, while a modern stainless steel kitchen introduces a clean, contemporary contrast to the home’s historic character.
Designed in the Art Moderne style by renowned architect H.
Policies
Sorry, policy info isn’t available right now. Check back later.
Home features
Dishwasher
Hardwood floors
View
City, Garden
Building amenities
Services and facilities
Doorman
Elevator
Laundry in building
Live-in super
Wellness and recreation
No info on wellness and recreation
Shared outdoor space
No info on shared outdoor space
About the building
10 West 74th Street
10 West 74th Street, New York, NY 10023
86 units
10 stories
1941 built
Property history
Prices shown are base rent only. For total monthly price and additional fees, see .
| Date | Base rent | Event |
|---|---|---|
3/25/2026 | $6,950 | Listed by Douglas Elliman |
4/20/2023 | $6,195 | |
4/18/2023 | $6,195 | |
3/21/2022 | $5,750 | |
3/17/2022 | $5,750 |
Past listing photos
Sign in to take a closer look at how this home compares to similar homes.
Explore Upper West Side
Transit
| Location | Distance |
|---|---|
BCat 72nd St | under 500 feet |
BCat 81st St–Museum of Natural History | 0.23 miles |
123at 72nd St | 0.33 miles |
1at 66th St–Lincoln Center | 0.42 miles |
1at 79th St | 0.47 miles |
About Upper West Side
Rental prices shown are base rent before any fees. Visit listings for cost and fees breakdown.
SalesMedian asking price
2 beds
$1.6M
RentalsMedian asking base rent
2 beds
$6,300
Sandwiched between two beautiful parks, the Upper West Side is one of the greenest spots in Manhattan. For that reason, it is a perennial favorite. The Upper West Side is relaxed, but never dull. There are plenty of low-key bars and restaurants to frequent along Amsterdam Avenue, and Broadway is an always-bustling commercial center. The wide, tree-lined streets still boast many mom-and-pop stores. Less posh than the Upper East Side, it is more easily accessible by public transportation, and real estate prices are just as, if not more, expensive.
Learn more about Upper West SideSimilar homes
Prices shown are base rent only and don't include any fees. Visit each listing to see a complete cost breakdown.
Similar Homes looks at ad spend and other factors like location, price, and number of beds and baths.










































































































