- ft²
4 rooms
2 beds
2 baths
Hybrid
- South Harlem
Restricted sale
recorded sale
Sold on 3/26/2024
Verified by closing records
Last listed for $749,000
Seller's agents
This home has been saved by 43 users.
Listing by The Agency, Real Estate Principal Office, 88 University Place, New York, NY 10003
Common charges
$933/mo
Estimated payment
$5,194/mo
Legal disclaimerAll calculations are estimates provided by StreetEasy for informational purposes only. Actual amounts or financing terms may vary. Please contact your mortgage provider for specifics.Taxes
No info
Tax abatement
421a expires in 2031
About
Seller’s agent
Buyer’s agent
description
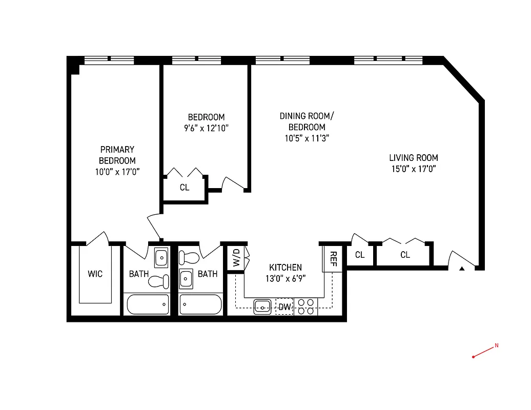
Welcome to Apartment 5F, a spacious, sun-drenched two bedroom, two bathroom in move-in-ready condition in one of the most desirable and convenient locations in town. Boasting a generous and well-designed layout, with ample space for both relaxation and entertainment, the open-concept living and dining area is perfect for hosting guests or enjoying quiet evenings at home.
Policies
Sorry, policy info isn’t available right now. Check back later.
Home features
Hardwood floors
View
City
Washer/dryer
Building amenities
Services and facilities
Bike room
Doorman
Virtual
Elevator
Live-in super
Parking
Garage
Storage space
Locker/cage
Wellness and recreation
No info on wellness and recreation
Shared outdoor space
Courtyard
About the building
100 West 117th Street
100 West 117th Street, New York, NY 10026
28 units
6 stories
2003 built
For sale
0 available units for saleFor rent
0 available units for rentDocuments and permits
View documents and permitsProperty history
- Price Change: No changes
- Days on market: 54 daysThis is the number of days the listing has been on StreetEasy.
| Date | Price | Event |
|---|---|---|
3/26/2024 | $760,000 | Sold by The Agency |
11/12/2023 | $749,000 | In contract |
9/19/2023 | $749,000 | Listed by The Agency |
11/14/2016 | $685,000 | |
11/29/2016 | $599,000 |
Past listing photos
Sign in to take a closer look at how this home compares to similar homes.
Explore South Harlem
Transit
| Location | Distance |
|---|---|
23at 116th St | under 500 feet |
23at 110th St–Central Park North | 0.28 miles |
BCat 116th St | 0.3 miles |
23at 125th St | 0.4 miles |
BCat Cathedral Parkway–110th St | 0.47 miles |




































































































