View this home virtually
- ft²
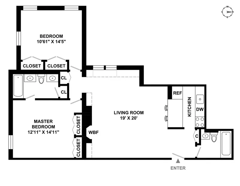
4 rooms
2 beds
2 baths
Co-op
- Upper West Side
recorded sale
Sold on 5/16/2019
Verified by closing records
Last listed for $1,499,000
Seller's agents
This home has been saved by 133 users.
Listing by Halstead Real Estate, 1934 Broadway, New York, NY 10023 | MLS #: 19463754
Maintenance fees
$2,512/mo
Estimated payment
$10,092/mo
Legal disclaimerAll calculations are estimates provided by StreetEasy for informational purposes only. Actual amounts or financing terms may vary. Please contact your mortgage provider for specifics.Taxes
Included in maintenance fees
Tax abatement
No info
About
Sellerâs agent
Buyerâs agent
description
Contract Signed. This mint condition two bedroom/two full bath home has undergone an entire wall-to-wall renovation and is in pristine, move-in condition. It features custom millwork, chef's kitchen, double-sink in the master bath, marble topped bar, built-in speakers, wood burning fireplace and all electronic wiring hidden for a clean look. When first entering this amazing space, one is greeted by an elegant yet playful entry foyer.
Policies
Co-purchase allowed
Gifts allowed
Parents buying allowed
Pets allowed
Cats and dogs allowed
Pied-a-terre allowed
Sublets allowed
Home features
Dishwasher
Fireplace
Private outdoor space
Garden
Washer/dryer
Building amenities
Services and facilities
Concierge
Doorman
Full-time
Elevator
Laundry in building
Live-in super
Wellness and recreation
No info on wellness and recreation
Shared outdoor space
No info on shared outdoor space
About the building
101 West 81st Street
101 West 81st Street, New York, NY 10024
143 units
7 stories
1900 built
For sale
4 available units for saleFor rent
0 available units for rentDocuments and permits
View documents and permitsProperty history
- Price Change: No changes
- Days on market: 19 daysThis is the number of days the listing has been on StreetEasy.
| Date | Price | Event |
|---|---|---|
5/16/2019 | $1,525,000 | Sold by Halstead Real Estate |
3/19/2019 | $1,499,000 | In contract |
2/28/2019 | $1,499,000 | Listed by Halstead Real Estate |
10/16/2012 | $1,149,000 | |
7/25/2012 | $1,149,000 |
Past listing photos
Sign in to take a closer look at how this home compares to similar homes.
Explore Upper West Side
Transit
| Location | Distance |
|---|---|
BCat 81st StâMuseum of Natural History | 0.18 miles |
1at 79th St | 0.26 miles |
BCat 86th St | 0.29 miles |
1at 86th St | 0.31 miles |
123at 72nd St | 0.49 miles |
About Upper West Side
Rental prices shown are base rent before any fees. Visit listings for cost and fees breakdown.
SalesMedian asking price
2 beds
$1.6M
RentalsMedian asking base rent
2 beds
$6,200
Sandwiched between two beautiful parks, the Upper West Side is one of the greenest spots in Manhattan. For that reason, it is a perennial favorite. The Upper West Side is relaxed, but never dull. There are plenty of low-key bars and restaurants to frequent along Amsterdam Avenue, and Broadway is an always-bustling commercial center. The wide, tree-lined streets still boast many mom-and-pop stores. Less posh than the Upper East Side, it is more easily accessible by public transportation, and real estate prices are just as, if not more, expensive.
Learn more about Upper West Side












































































































