3,200 ft²
$1,498 per ft²
7 rooms
4 beds
4.5 baths
House
- Carnegie Hill
reported sale
Sold on 6/25/2015
Not yet verified by closing records
Seller's agents
This home has been saved by 69 users.
Listing by Brown Harris Stevens, Real Estate Principal Office, 445 Park Avenue, New York, NY 10022 | MLS #: 11921125
Common charges
Not applicable
Estimated payment
$23,303/mo
Legal disclaimerAll calculations are estimates provided by StreetEasy for informational purposes only. Actual amounts or financing terms may vary. Please contact your mortgage provider for specifics.Taxes
No info
Tax abatement
No info
About
Seller’s agent
description
CONTRACT SIGNED
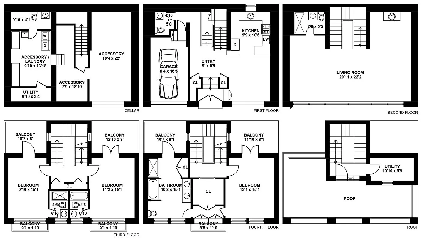
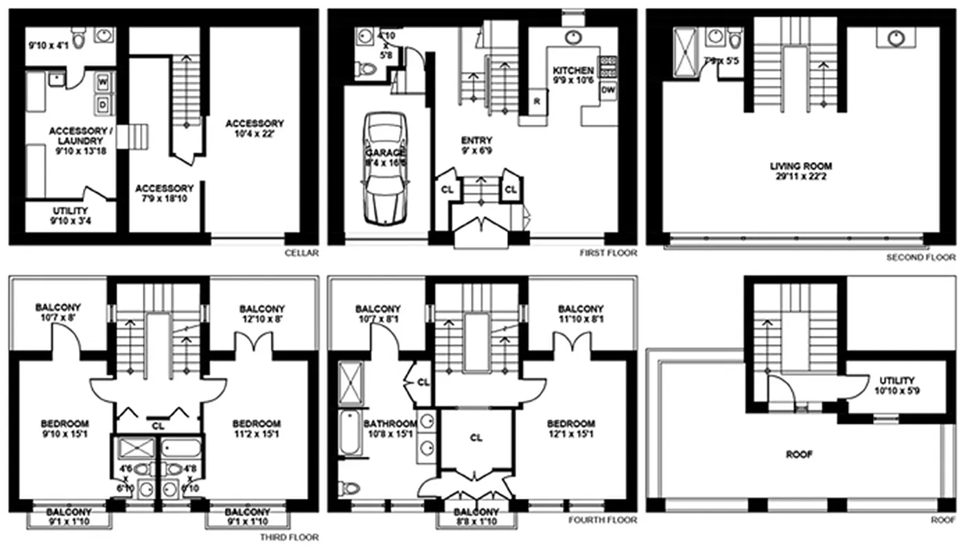
Newly Developed 33' Wide Townhouse
Brand-new, never been lived in, perfectly laid out and gorgeously finished townhouse now in its final stage of construction on East 97th Street off of Park Avenue. With 33 feet of sun-flooded South-facing frontage, a 2-car garage and a roof terrace overlooking Park Avenue, this 3-4 bedroom home offers you the opportunity to own and move right in to...
Policies
Sorry, policy info isn’t available right now. Check back later.
Home features
Central air
Dishwasher
Private outdoor space
Balcony, Terrace
Washer/dryer
Building amenities
Services and facilities
Parking
Garage
Storage space
Wellness and recreation
No info on wellness and recreation
Shared outdoor space
Roof deck
About the building
101C East 97th Street
101c East 97th Street, New York, NY 10029
1 unit
4 stories
2015 built
For sale
0 available units for saleFor rent
0 available units for rentDocuments and permits
View documents and permitsProperty history
- Price Change: No changes
- Days on market: 117 daysThis is the number of days the listing has been on StreetEasy.
| Date | Price | Event |
|---|---|---|
7/11/2022 | $4,556,900 | |
7/28/2015 | $4,650,000 | |
8/15/2015 | $4,795,000 | Sold by Brown Harris Stevens |
6/25/2015 | $4,795,000 | No longer available |
6/25/2015 | $4,795,000 | In contract |
Past listing photos
Sign in to take a closer look at how this home compares to similar homes.
Explore Carnegie Hill
Transit
| Location | Distance |
|---|---|
6at 96th St | under 500 feet |
6at 103rd St | 0.29 miles |
Qat 96th St | 0.3 miles |
456at 86th St | 0.55 miles |
6at 110th St | 0.64 miles |




































































































































































































