3,840 ft²
$1,144 per ft²
2 rooms
Studio
0 baths
Two-family home
- Park Slope
reported sale
Sold on 5/29/2014
Not yet verified by closing records
Seller's agents
This home has been saved by 6 users.
Listing by Brown Harris Stevens, Real Estate Principal Office, 129 Montague Street, Brooklyn, NY 11201 | MLS #: 9741305
Common charges
Not applicable
Estimated payment
$22,695/mo
Legal disclaimerAll calculations are estimates provided by StreetEasy for informational purposes only. Actual amounts or financing terms may vary. Please contact your mortgage provider for specifics.Taxes
No info
Tax abatement
No info
About
Seller’s agent
description
CONTRACT SIGNED
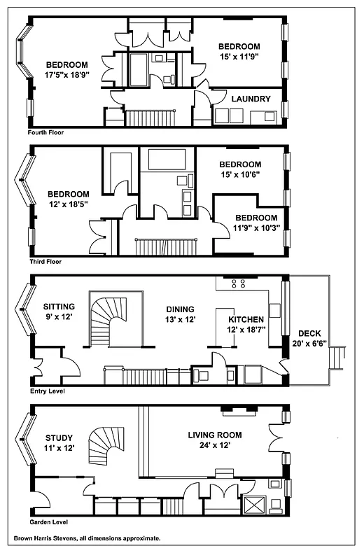
Wonderful North Slope Single Family
This beautifully renovated North Slope townhouse, situated on a coveted 20' X 137' lot, is an excellent blend of original detail and modern design. A legal two family, this house has been turned into a magnificent single family home. The parlor floor has an open floorplan with a chef's kitchen (with center island, quality stainless steel appliances...
Policies
Sorry, policy info isn’t available right now. Check back later.
Home features
Private outdoor space
Garden
Building amenities
Services and facilities
Laundry in building
Storage space
Wellness and recreation
No info on wellness and recreation
Shared outdoor space
Deck
About the building
105 Lincoln Place
105 Lincoln Place, Brooklyn, NY 11217
2 units
3 stories
1901 built
For sale
0 available units for saleFor rent
0 available units for rentDocuments and permits
View documents and permitsProperty history
- Price Change: No changes
- Days on market: 41 daysThis is the number of days the listing has been on StreetEasy.
| Date | Price | Event |
|---|---|---|
5/29/2014 | $4,375,000 | |
5/30/2014 | $4,395,000 | Sold by Brown Harris Stevens |
5/29/2014 | $4,395,000 | No longer available |
4/14/2014 | $4,395,000 | In contract |
3/4/2014 | $4,395,000 | Listed by Brown Harris Stevens |
Past listing photos
Sign in to take a closer look at how this home compares to similar homes.
Explore Park Slope
Transit
| Location | Distance |
|---|---|
BQat 7th Av | 0.19 miles |
23at Bergen St | 0.28 miles |
23at Grand Army Plaza | 0.28 miles |
Rat Union St | 0.36 miles |
LIRRat Atlantic Terminal | 0.48 miles |
About Park Slope
Rental prices shown are base rent before any fees. Visit listings for cost and fees breakdown.
SalesMedian asking price
Studio
$450K
RentalsMedian asking base rent
Studio
$3,157
Park Slope has a tranquil, easygoing vibe and can almost feel suburban. Strollers and children of all ages are a constant presence on sidewalks, as are shoppers patronizing local boutiques and dog walkers heading up to the park. Residents are Brooklynites through and through and tend to be socially conscious, artistically minded, and committed to their community. At night, a casual restaurant scene comes alive. For anyone looking for a night out, there are plenty of beer gardens and wine bars to patronize, especially in the South Slope, but don't go looking for dance clubs.
Learn more about Park Slope






































































































































































































































































