$11,500
For Rent
Base rent only. For total monthly price and additional fees, see .
Rented 7/3/2018
3,800 ft²
$36 per ft²
13 rooms
6 beds
3.5 baths
Two-family home
- Park Slope
Under NYC law, you can't be charged a broker fee if you didn't hire a broker.
Listed By
This home has been saved by 15 users.
Listing by Brown Harris Stevens, Real Estate Principal Office, 100 Seventh Avenue, Brooklyn, NY 11215
Unavailable
Rented on 7/3/2018
Days on market
21 days
Last price change
No changes
About
Available August 15, 2018 or possibly sooner.
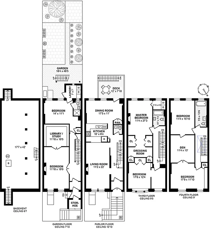
This elegant 6 bedroom, 3.5 bath, North Slope townhouse has been beautifully updated with modern amenities while maintaining its charming historic style. In addition to the thoughtfully preserved original details, including parquet floors, decorative fireplaces, plaster details and handsomely carved woodwork, the home also offers remote controlled central...
Policies
Sorry, policy info isn’t available right now. Check back later.
Home features
Central air
Dishwasher
Private outdoor space
Balcony, Garden, Patio, Terrace
Washer/dryer
Building amenities
Services and facilities
Bike room
Laundry in building
Storage space
Wellness and recreation
No info on wellness and recreation
Shared outdoor space
Deck
About the building
106 Garfield Place
106 Garfield Place, Brooklyn, NY 11215
2 units
3 stories
1901 built
Property history
Prices shown are base rent only. For total monthly price and additional fees, see .
| Date | Base rent | Event |
|---|---|---|
7/3/2018 | $11,500 | Rented by Brown Harris Stevens |
6/12/2018 | $11,500 | Listed by Brown Harris Stevens |
Past listing photos
Sign in to take a closer look at how this home compares to similar homes.
Explore Park Slope
Transit
| Location | Distance |
|---|---|
Rat Union St | 0.26 miles |
Fat 7th Av | 0.47 miles |
FGRat 9th St | 0.47 miles |
BQat 7th Av | 0.48 miles |
23at Grand Army Plaza | 0.5 miles |
About Park Slope
Rental prices shown are base rent before any fees. Visit listings for cost and fees breakdown.
SalesMedian asking price
6 beds
$4.65M
Park Slope has a tranquil, easygoing vibe and can almost feel suburban. Strollers and children of all ages are a constant presence on sidewalks, as are shoppers patronizing local boutiques and dog walkers heading up to the park. Residents are Brooklynites through and through and tend to be socially conscious, artistically minded, and committed to their community. At night, a casual restaurant scene comes alive. For anyone looking for a night out, there are plenty of beer gardens and wine bars to patronize, especially in the South Slope, but don't go looking for dance clubs.
Learn more about Park SlopeSimilar homes
Prices shown are base rent only and don't include any fees. Visit each listing to see a complete cost breakdown.
Similar Homes looks at ad spend and other factors like location, price, and number of beds and baths.





















































































































