$17,900
For Rent
Base rent only. For total monthly price and additional fees, see .
No longer available 4/29/2025
2,800 ft²
$76 per ft²
3 rooms
Studio
2.5 baths
Condo
- Tribeca
Under NYC law, you can't be charged a broker fee if you didn't hire a broker.
Listed By
This home has been saved by 11 users.
Listing by Brown Harris Stevens, Real Estate Principal Office, 43 North Moore Street, New York, NY 10013
Unavailable
No longer available on 4/29/2025
Days on market
33 days
Last price change
No changes
About
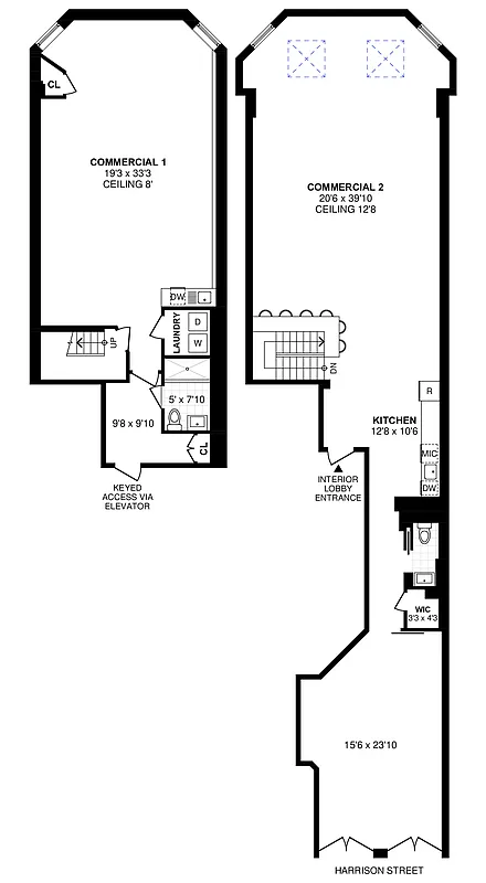
11 Harrison Street offers a pristine, showroom-quality ground floor commercial space with impressive high ceilings and excellent street frontage. The 1,600sqft ground floor is complemented by a finished 1,200sqft lower level, providing ample room for a variety of uses.
The ground floor features a 400sqft entry area that leads into a spacious, open-concept room, bathed in natural light from skylights and large rear windows.
Policies
Sorry, policy info isn’t available right now. Check back later.
Home features
Central air
Dishwasher
Hardwood floors
Building amenities
Services and facilities
Elevator
Wheelchair access
Wellness and recreation
No info on wellness and recreation
Shared outdoor space
No info on shared outdoor space
About the building
11 Harrison Street
11 Harrison Street, New York, NY 10013
5 units
7 stories
1893 built
Property history
Prices shown are base rent only. For total monthly price and additional fees, see .
| Date | Base rent | Event |
|---|---|---|
7/29/2025 | $17,900 | No longer available |
4/29/2025 | $17,900 | Temporarily off market |
3/27/2025 | $17,900 | Listed by Brown Harris Stevens |
12/8/2008 | $10,000 | |
12/8/2008 | $10,000 |
Sign in to take a closer look at how this home compares to similar homes.
Explore Tribeca
Transit
| Location | Distance |
|---|---|
1at Franklin St | 0.14 miles |
123at Chambers St | 0.19 miles |
ACE23at Chambers St | 0.25 miles |
ACEat Canal St | 0.26 miles |
1at Canal St | 0.34 miles |
About Tribeca
Rental prices shown are base rent before any fees. Visit listings for cost and fees breakdown.
SalesMedian asking price
Studio
$1.98M
RentalsMedian asking base rent
Studio
$5,200
Tribeca is an upscale neighborhood known for high-end real estate and well-heeled residents — a downtown haven for European cars and pedigreed dogs. It's also a truly gorgeous area that mixes glorious old cast-iron lofts, wide cobblestone streets, and dramatic new buildings. Decades ago, these lofts housed artists and squatters. But the bohemians have given way to cool-seekers with bigger bank accounts. Now, this neighborhood is among the most expensive places to live in the city. That hasn't cost the neighborhood much of its sophistication, though. Nightlife in Tribeca remains busy but refined, attracting a cosmopolitan crowd with an appreciation for the finer things in life.
Learn more about TribecaSimilar homes
Prices shown are base rent only and don't include any fees. Visit each listing to see a complete cost breakdown.
Similar Homes looks at ad spend and other factors like location, price, and number of beds and baths.
































































































