2,075 ft²
$657 per ft²
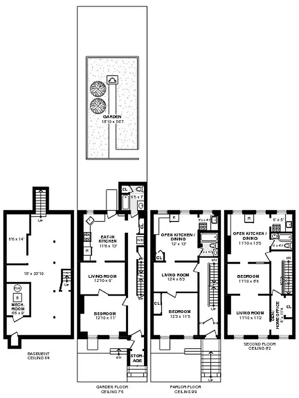
10 rooms
3 beds
3 baths
Condo
- Carroll Gardens
reported sale
Sold on 9/30/2018
Not yet verified by closing records
Seller's agent
This home has been saved by 202 users.
Listing by Brownstone Real Estate, Limited Liability Broker, 268 Court Street, Brooklyn, NY 11231 | Brokerage Listing ID: 29684
Common charges
No info
Estimated payment
$7,326/mo
Legal disclaimerAll calculations are estimates provided by StreetEasy for informational purposes only. Actual amounts or financing terms may vary. Please contact your mortgage provider for specifics.Taxes
$394/mo
Tax abatement
No info
About
Seller’s agent
description
Seeing this listing on StreetEasy? Scroll to the bottom of the page to the "Listing Provided by..." section or click "Seller's Agent Info" to view the Michael's contact details.
On Nelson Street, off Clinton Street, this three-family townhouse provides a truly exceptional opportunity for a savvy buyer to transform the property into a dream home or high-yield investment.
Policies
Sorry, policy info isn’t available right now. Check back later.
Home features
Dishwasher
Fireplace
Building amenities
No info on building amenities
About the building
111 Nelson Street
111 Nelson Street, Brooklyn, NY 11231
3 units
2 stories
1899 built
For sale
0 available units for saleFor rent
0 available units for rentDocuments and permits
View documents and permitsProperty history
- Price Change: ↓ $33,000 (-2.4%) on 9/30/18
- Days on market: 109 daysThis is the number of days the listing has been on StreetEasy.
| Date | Price | Event |
|---|---|---|
10/1/2018 | $1,365,000 | Sold by Brownstone Real Estate |
9/30/2018 | $1,365,000 | Price decreased by 2% |
9/30/2018 | $1,398,000 | No longer available |
7/6/2018 | $1,398,000 | In contract |
5/11/2018 | $1,398,000 | Price decreased by 13% |
Past listing photos
Sign in to take a closer look at how this home compares to similar homes.
Explore Carroll Gardens
Transit
| Location | Distance |
|---|---|
FGRat Smith–9th St | 0.27 miles |
FGat Carroll St | 0.32 miles |
FGat Bergen St | 0.76 miles |
Fat 4th Av | 0.81 miles |
FGRat 9th St | 0.81 miles |
About Carroll Gardens
Rental prices shown are base rent before any fees. Visit listings for cost and fees breakdown.
SalesMedian asking price
3 beds
$3.26M
RentalsMedian asking base rent
3 beds
$8,400
Carroll Gardens is at once the heart of old-school Brooklyn and a showcase for the borough's brownstone boom. The neighborhood has long been known for its red-sauce Italian joints and lively street life. But now, staples like Caputo's Bake Shop and Monteleone's Bakery and Café abut upscale stroller shops, yoga studios and fro-yo joints. Despite the newcomers, the neighborhood still feels like a small town, one of the few places where you might know your neighbors, your postman and your butcher by name.
Learn more about Carroll Gardens












































































































