$3,950,000
For Sale
No longer available 4/8/2020
5,355 ft²
$737 per ft²
14 rooms
4 beds
6+ baths
Rental unit
- Upper West Side
Resale
Seller's agent
This home has been saved by 288 users.
Listing by Halstead Real Estate, 110 5th Avenue, New York, NY 10011 | MLS #: 19272215
Common charges
Not applicable
Estimated payment
$25,378/mo
Legal disclaimerAll calculations are estimates provided by StreetEasy for informational purposes only. Actual amounts or financing terms may vary. Please contact your mortgage provider for specifics.Taxes
$5,012/mo
Tax abatement
No info
About
Seller’s agent
description
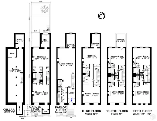
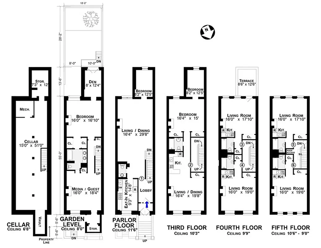
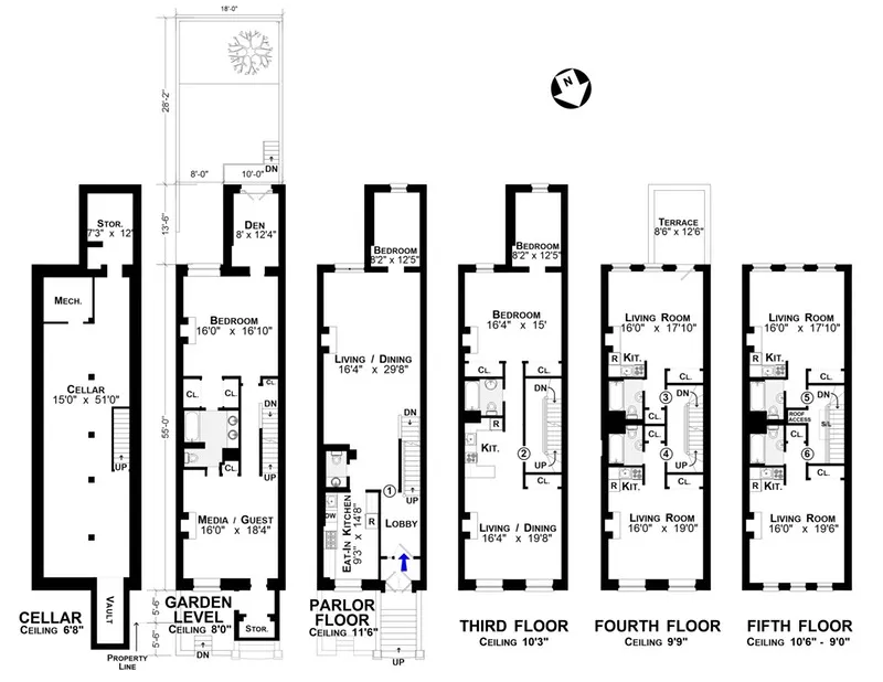
Enjoy grand townhouse living, generate income and own a piece of history in this prime Upper West Side location! Bring your architect to create and customize the owner's unit, reimagining it as an ideal blend of contemporary style and Old World charm, with potential for up to 4 bedrooms and 3 bathrooms. (Please note that photos have been virtually staged.
Policies
Sorry, policy info isn’t available right now. Check back later.
Home features
Fireplace
Private outdoor space
Garden
Building amenities
No info on building amenities
About the building
116 West 81st Street
116 West 81st Street, New York, NY 10024
6 units
4 stories
1900 built
For sale
0 available units for saleFor rent
0 available units for rentDocuments and permits
View documents and permitsProperty history
- Price Change: ↓ $500,000 (-11.2%) on 11/5/19
- Days on market: 475 daysThis is the number of days the listing has been on StreetEasy.
| Date | Price | Event |
|---|---|---|
4/8/2020 | $3,950,000 | No longer available |
11/5/2019 | $3,950,000 | Price decreased by 11% |
7/11/2019 | $4,450,000 | Price decreased by 6% |
12/20/2018 | $4,750,000 | Listed by Halstead Real Estate |
Sign in to take a closer look at how this home compares to similar homes.
Explore Upper West Side
Transit
| Location | Distance |
|---|---|
BCat 81st St–Museum of Natural History | 0.21 miles |
1at 79th St | 0.22 miles |
1at 86th St | 0.32 miles |
BCat 86th St | 0.33 miles |
123at 72nd St | 0.44 miles |
About Upper West Side
Rental prices shown are base rent before any fees. Visit listings for cost and fees breakdown.
SalesMedian asking price
4 beds
$5.6M
RentalsMedian asking base rent
4 beds
$18,750
Sandwiched between two beautiful parks, the Upper West Side is one of the greenest spots in Manhattan. For that reason, it is a perennial favorite. The Upper West Side is relaxed, but never dull. There are plenty of low-key bars and restaurants to frequent along Amsterdam Avenue, and Broadway is an always-bustling commercial center. The wide, tree-lined streets still boast many mom-and-pop stores. Less posh than the Upper East Side, it is more easily accessible by public transportation, and real estate prices are just as, if not more, expensive.
Learn more about Upper West Side




























































































































