$2,750,000
For Sale
No longer available 4/26/2013
3,400 ft²
$808 per ft²
11 rooms
5 beds
4 baths
Two-family home
- Fort Greene
Seller's agent
This home has been saved by 11 users.
Listing by Corcoran, Limited Liability Broker, 1 Pierrepont Plz, Brooklyn, NY 11201 | Brokerage Listing ID: 2539318
Common charges
Not applicable
Estimated payment
$14,428/mo
Legal disclaimerAll calculations are estimates provided by StreetEasy for informational purposes only. Actual amounts or financing terms may vary. Please contact your mortgage provider for specifics.Taxes
$49/mo
Tax abatement
No info
About
Seller’s agent
description
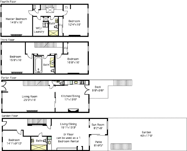
This stunning one-family home, just steps from Fort Greene Park, has been transformed into a masterful example of preservation and innovation. Historic details have been brought back to life through careful restoration, while walls have been opened up to create more space and light everywhere. The dividing wall in the front parlor has been removed, showcasing a dramatic hand-carved center staircase and generously allowing for a dining room and a comfortable formal living room.
Policies
Sorry, policy info isn’t available right now. Check back later.
Home features
Fireplace
Private outdoor space
Patio
Building amenities
No info on building amenities
About the building
11A South Elliott Place
11a South Elliott Place, Brooklyn, NY 11217
2 units
3 stories
1900 built
For sale
0 available units for saleFor rent
0 available units for rentDocuments and permits
View documents and permitsProperty history
- Price Change: No changes
- Days on market: 21 daysThis is the number of days the listing has been on StreetEasy.
| Date | Price | Event |
|---|---|---|
4/25/2013 | $2,775,000 | |
4/26/2013 | $2,750,000 | No longer available |
3/18/2013 | $2,750,000 | In contract |
2/25/2013 | $2,750,000 | Listed by Corcoran |
Sign in to take a closer look at how this home compares to similar homes.
Explore Fort Greene
Transit
| Location | Distance |
|---|---|
Gat Fulton St | 0.15 miles |
Cat Lafayette Av | 0.2 miles |
2345at Nevins St | 0.25 miles |
BQRat DeKalb Av | 0.28 miles |
BDNQR2345at Atlantic Av–Barclays Ctr | 0.3 miles |
About Fort Greene
Rental prices shown are base rent before any fees. Visit listings for cost and fees breakdown.
SalesMedian asking price
5 beds
$4M
RentalsMedian asking base rent
5 beds
$25,000
With bustling flea markets, a world-renowned performance space, trendy boutiques, fabulous restaurants, and a rich literary and artistic tradition, Fort Greene attracts residents looking for a slower pace of living without sacrificing the vibrancy of urban life. Historic brownstones and row houses make up most of the available real estate, and it's common to find neighbors catching up on their stoops. Intense Brooklyn pride is in evidence on the main drag of Fulton Street, where a Notorious B.I.G. quote is painted on the side of a prominent building - "Spread love it's the Brooklyn way."
Learn more about Fort Greene


















































































































































































