- ft²
5 rooms
2 beds
2 baths
Co-op
- Upper West Side
Sponsor unit
Sponsor unitA unit being sold for the first time. Itâs typically owned by the building. For condos, this is often the developer. For co-ops, this is often the buildingâs original owner before it went co-op.
recorded sale
Sold on 5/1/2024
Verified by closing records
Last listed for $1,225,000
Seller's agents
This home has been saved by 538 users.
Listing by Douglas Elliman, Limited Liability Broker, 962 Madison Avenue, New York, NY 10021 | Brokerage Listing ID: 22728095
Maintenance fees
$1,527/mo
Estimated payment
$7,741/mo
Legal disclaimerAll calculations are estimates provided by StreetEasy for informational purposes only. Actual amounts or financing terms may vary. Please contact your mortgage provider for specifics.Taxes
Included in maintenance fees
Tax abatement
No info
About
Sellerâs agent
Buyerâs agent
description
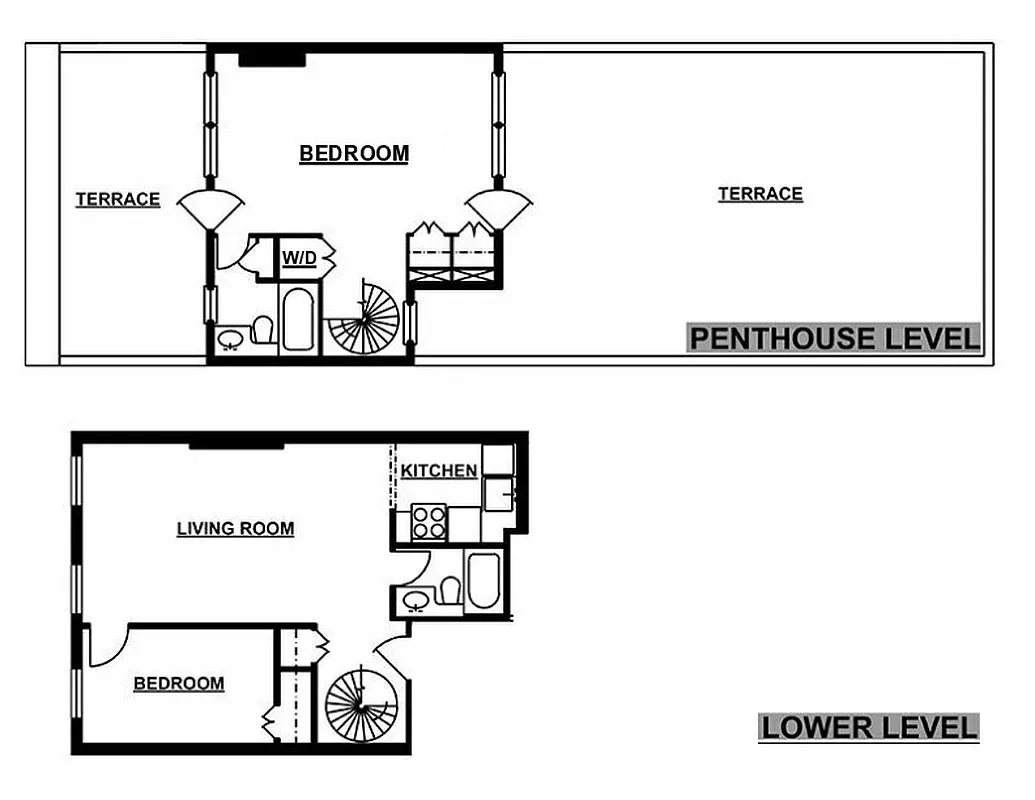
This beautiful sponsor unit is a 2-bedroom, 2-bathroom penthouse duplex with two large private roof terraces. The charming pre war brownstone is located on the Upper West Side of New York City. It boasts original details, with brand new washer/dryer unit, exposed brick throughout, and a working fireplace adding character and warmth to the space.
Policies
Sorry, policy info isnât available right now. Check back later.
Home features
Dishwasher
Fireplace
Hardwood floors
Private outdoor space
Roof deck, Terrace
View
City, Skyline
Washer/dryer
Building amenities
Services and facilities
No info on services and facilities
Wellness and recreation
No info on wellness and recreation
Shared outdoor space
Roof deck
About the building
122 West 80th Street
122 West 80th Street, New York, NY 10024
10 units
4 stories
1900 built
For sale
1 available units for saleFor rent
0 available units for rentDocuments and permits
View documents and permitsProperty history
- Price Change: No changes
- Days on market: 127 daysThis is the number of days the listing has been on StreetEasy.
| Date | Price | Event |
|---|---|---|
5/1/2024 | $1,100,000 | Sold by Douglas Elliman |
3/5/2024 | $1,225,000 | In contract |
10/30/2023 | $1,225,000 | Listed by Douglas Elliman |
Past listing photos
Sign in to take a closer look at how this home compares to similar homes.
Explore Upper West Side
Transit
| Location | Distance |
|---|---|
1at 79th St | 0.2 miles |
BCat 81st StâMuseum of Natural History | 0.22 miles |
1at 86th St | 0.36 miles |
BCat 86th St | 0.38 miles |
123at 72nd St | 0.39 miles |
About Upper West Side
Rental prices shown are base rent before any fees. Visit listings for cost and fees breakdown.
SalesMedian asking price
2 beds
$1.66M
RentalsMedian asking base rent
2 beds
$6,220
Sandwiched between two beautiful parks, the Upper West Side is one of the greenest spots in Manhattan. For that reason, it is a perennial favorite. The Upper West Side is relaxed, but never dull. There are plenty of low-key bars and restaurants to frequent along Amsterdam Avenue, and Broadway is an always-bustling commercial center. The wide, tree-lined streets still boast many mom-and-pop stores. Less posh than the Upper East Side, it is more easily accessible by public transportation, and real estate prices are just as, if not more, expensive.
Learn more about Upper West Side






















































































