$4,250
For Rent
Base rent only. For total monthly price and additional fees, see .
1,350 ft²
$37 per ft²
6 rooms
2 beds
1.5 baths
Two-family home
- Bushwick
Under NYC law, you can't be charged a broker fee if you didn't hire a broker.
Listed by
Listing by P R O Links Realty Inc, Real Estate Principal Office, 220-10 Horace Harding Expressway, Bayside, NY 11364
Available
Available now
Days on market
Listed today
Last price change
No changes
About
**All the open houses are by appointment only **
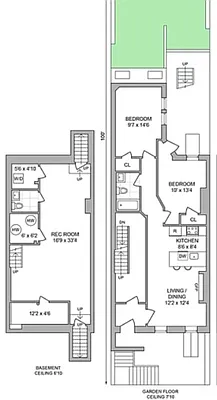
Or scheduled for a private showing BRAND NEW 1st floor plus lower level total area 1350 sf duplex with an in-unit washer and dryer!
Welcome to 1235 Gates Ave, a two bedroom & 1.5 bathrooms on the 1st floor plus 600 sf lower level residence . Located just 15-20 minutes to Manhattan at the Gates Ave J & Z Subway stop.
Policies
Sorry, policy info isn’t available right now. Check back later.
Home features
Central air
Dishwasher
Fireplace
Hardwood floors
Private outdoor space
Garden
View
Garden
Washer/dryer
Building amenities
No info on building amenities
About the building
1235 Gates Avenue
1235 Gates Avenue, Brooklyn, NY 11221
2 units
3 stories
1920 built
Property history
Prices shown are base rent only. For total monthly price and additional fees, see .
| Date | Base rent | Event |
|---|---|---|
5/2/2026 | $4,250 | Listed by P R O Links Realty Inc |
4/23/2025 | $4,200 | |
4/14/2025 | $4,200 |
Past listing photos
Sign in to take a closer look at how this home compares to similar homes.
Explore Bushwick
Transit
| Location | Distance |
|---|---|
JZat Gates Av | 0.3 miles |
Mat Knickerbocker Av | 0.39 miles |
Jat Kosciusko St | 0.47 miles |
Mat Central Av | 0.52 miles |
Jat Halsey St | 0.52 miles |
About Bushwick
Rental prices shown are base rent before any fees. Visit listings for cost and fees breakdown.
SalesMedian asking price
2 beds
$940K
RentalsMedian asking base rent
2 beds
$3,450
Bushwick has seen a lot of change over the years. In the early 1900s, it was known for its thriving distilleries and breweries. After those industries declined, it experienced a long period of blight through the 1970s and 1980s. Now the neighborhood is seeing a renaissance, as artists pushed out of Williamsburg and elsewhere move in and raise property values. Bushwick offers unconventional living spaces: The housing market is full of converted lofts in old factories, sometimes with great access to outdoor space.
Learn more about BushwickSimilar homes
Prices shown are base rent only and don't include any fees. Visit each listing to see a complete cost breakdown.
Similar Homes looks at ad spend and other factors like location, price, and number of beds and baths.













































































































