- ft²
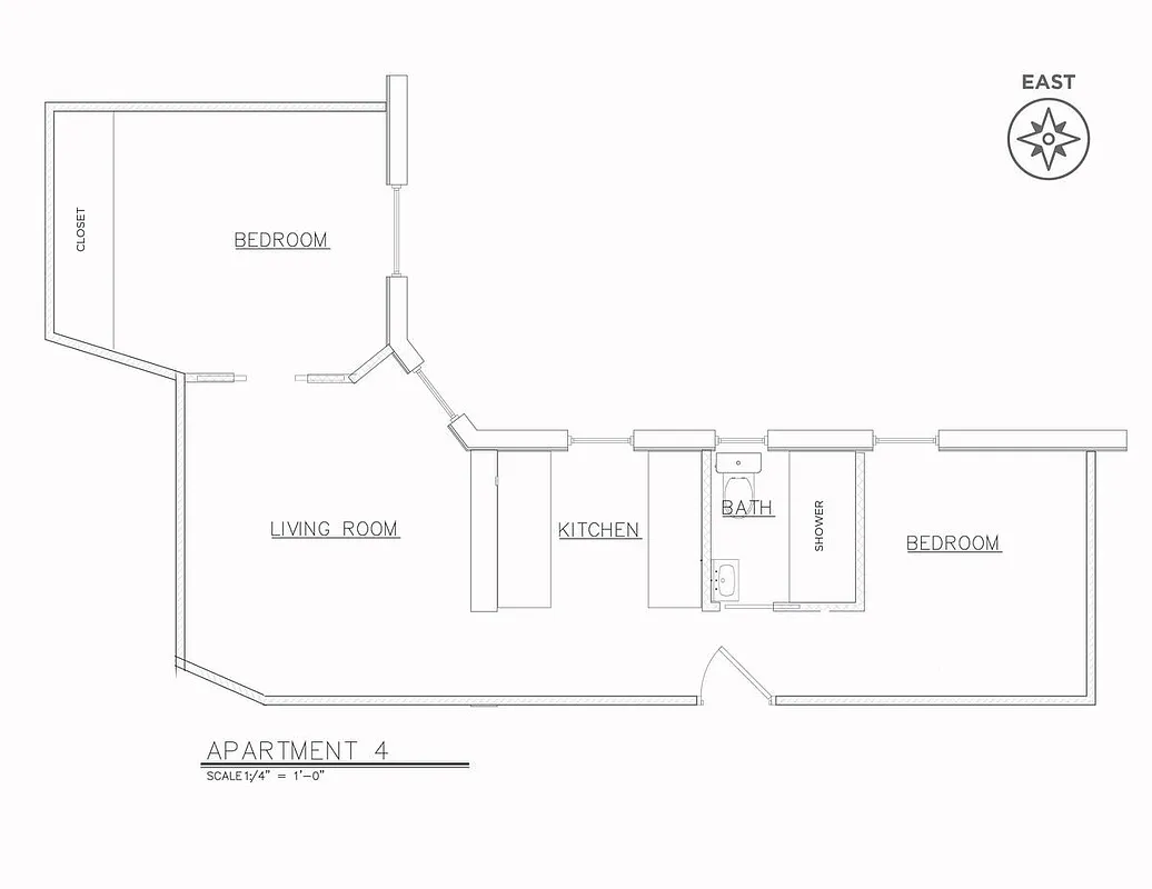
4 rooms
2 beds
1 bath
Co-op
- East Village
Resale
recorded sale
Sold on 8/26/2022
Verified by closing records
Last listed for $700,000
Listed by
Owner
This home has been saved by 83 users.
Listing by Owner
Maintenance fees
$1,039/mo
Estimated payment
$4,579/mo
Legal disclaimerAll calculations are estimates provided by StreetEasy for informational purposes only. Actual amounts or financing terms may vary. Please contact your mortgage provider for specifics.Taxes
Included in maintenance fees
Tax abatement
No info
About
Buyerâs agent
description
TWO good to be true! TWO BEDROOM (or bedroom + home office ) located in the heart of the East Village. This beautifully renovated second-floor jewel of an apartment boasts prewar character with clean contemporary style.
This apartment features five windows with two bedrooms located at opposite ends. BEDROOM 1: queen bed, generous closets, custom millwork, sconces, pocket double doors/transom window;...
Policies
Co-purchase allowed
Pets allowed
Cats and dogs allowed
Sublets allowed
Home features
Dishwasher
Building amenities
Services and facilities
Bike room
Laundry in building
Wellness and recreation
No info on wellness and recreation
Shared outdoor space
No info on shared outdoor space
About the building
125 East 4th Street
125 East 4th Street, New York, NY 10003
28 units
6 stories
1905 built
For sale
0 available units for saleFor rent
0 available units for rentDocuments and permits
View documents and permitsProperty history
- Price Change: No changes
- Days on market: 29 daysThis is the number of days the listing has been on StreetEasy.
| Date | Price | Event |
|---|---|---|
8/26/2022 | $695,000 | Sold by Owner |
6/11/2022 | $725,000 | No longer available |
5/13/2022 | $725,000 | Listed by Owner |
4/21/2011 | $430,000 | |
4/25/2011 | $449,000 |
Past listing photos
Sign in to take a closer look at how this home compares to similar homes.
Explore East Village
Transit
| Location | Distance |
|---|---|
Fat 2nd Av | 0.18 miles |
BDFM6at Bleecker St | 0.35 miles |
6at Astor Place | 0.35 miles |
RWat 8th StâNYU | 0.4 miles |
BDFM6at BroadwayâLafayette St | 0.42 miles |
About East Village
Rental prices shown are base rent before any fees. Visit listings for cost and fees breakdown.
SalesMedian asking price
2 beds
$1.5M
RentalsMedian asking base rent
2 beds
$5,495
Known and loved for being the birthplace of punk rock, the East Village is known for its vibrant restaurants and cocktail dens. During the day, however, the neighborhood slows down and has a tranquil feel. Meander down a leafy side street, and you'll happen upon plenty of prewar buildings and rusting fire escapes, which lend the East Village its old-fashioned charm.
Learn more about East Village














































































