- ft²
2 rooms
Studio
2.5 baths
Three-family home
- Park Slope
reported sale
Sold on 7/27/2011
Not yet verified by closing records
Seller's agents
Brown Harris Stevens
Brown Harris Stevens
This home has been saved by 2 users.
Listing by Brown Harris Stevens, Real Estate Principal Office | MLS #: 1222408
Common charges
Not applicable
Estimated payment
$11,825/mo
Legal disclaimerAll calculations are estimates provided by StreetEasy for informational purposes only. Actual amounts or financing terms may vary. Please contact your mortgage provider for specifics.Taxes
$482/mo
Tax abatement
No info
About
Seller’s agent
description
CONTRACT SIGNED
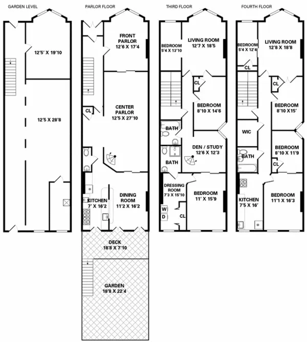
Beautiful North Slope Brownstone
This beautiful Park Slope brownstone has soaring ceilings on every floor, huge windows that let the sun shine in, lots of original detail such as intricately designed hardwood floors, moldings, trim, pocket doors and a deep garden to enjoy the summer in.
It is a 3 story + unfinished English basement, 20 foot wide and 65 foot deep home with an owner's duplex and 3 bedroom rental
Policies
Sorry, policy info isn’t available right now. Check back later.
Home features
Private outdoor space
Garden
Building amenities
Services and facilities
Laundry in building
Wellness and recreation
No info on wellness and recreation
Shared outdoor space
Deck
About the building
131 Berkeley Place
131 Berkeley Place, Brooklyn, NY 11217
3 units
3 stories
1899 built
For sale
0 available units for saleFor rent
0 available units for rentDocuments and permits
View documents and permitsProperty history
- Price Change: No changes
- Days on market: 20 daysThis is the number of days the listing has been on StreetEasy.
| Date | Price | Event |
|---|---|---|
6/5/2020 | $3,900,000 | |
11/16/2019 | $4,250,000 | |
10/31/2019 | $4,250,000 | |
10/15/2019 | $4,250,000 | |
10/10/2019 | $4,250,000 |
Past listing photos
Sign in to take a closer look at how this home compares to similar homes.
Explore Park Slope
Transit
| Location | Distance |
|---|---|
| 0.2 miles |
| 0.25 miles |
| 0.35 miles |
| 0.38 miles |
| 0.54 miles |
About Park Slope
Rental prices shown are base rent before any fees. Visit listings for cost and fees breakdown.
SalesMedian asking price
Studio
$474K
RentalsMedian asking base rent
Studio
$3,556
Park Slope has a tranquil, easygoing vibe and can almost feel suburban. Strollers and children of all ages are a constant presence on sidewalks, as are shoppers patronizing local boutiques and dog walkers heading up to the park. Residents are Brooklynites through and through and tend to be socially conscious, artistically minded, and committed to their community. At night, a casual restaurant scene comes alive. For anyone looking for a night out, there are plenty of beer gardens and wine bars to patronize, especially in the South Slope, but don't go looking for dance clubs.
Learn more about Park Slope

























































































